Terratetto plurifamiliare via Olmo Longo, Casalecchio, Rimini

€ 365.000
5+
260 m²
3+
No
Balcone
Terrazzo

Nota

Annuncio aggiornato il 27/05/2025
Descrizione

riferimento: 460/25

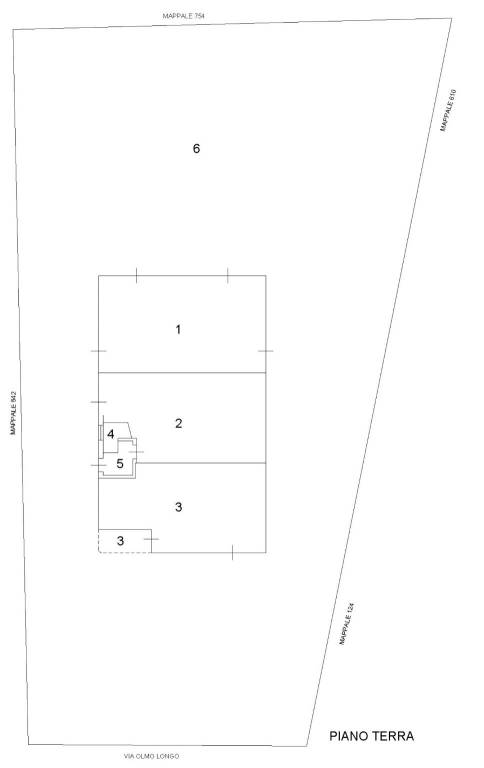
Trifamiliare indipendente da ultimare

In zona Casalecchio, a due passi da Riccione e da Rimini, in zona residenziale tranquilla e fuori dal centro abitato. Proponiamo in vendita esclusiva un intera casa Trifamiliare indipendente su lotto di circa 1.000 mq. di nuova costruzione ma da ultimare. Attualmente al piano terra ci sono due Appartamenti, un comodo Trilocale ed un Ampio Bilocale, entrambi con ingresso indipendente. Al piano primo invece un ampio Appartamento Quadrilocale con terrazzi e sottotetto ad uso ripostiglio ( disposizioni interne visibili sulle planimetrie allegate all'annuncio ) completano la proprietà 2 ampi garage al piano terra, posti sul retro del fabbricato. Internamente gli appartamenti sono praticamente ultimati, completi di impianti ed infissi, pavimenti e bagni. Esternamente invece il fabbricato deve essere ultimato con recinzioni e cancelli, ringhiere e tinteggiatura. Sono da completare gli allacciamenti, già tutti predisposti e pronti per essere collegati alle pubbliche utenze.
Se vuoi saperne di più, puoi parlare con Manuela (Front Office).
Caratteristiche
Tipologia
Terratetto plurifamiliare | Intera proprietà | Classe immobile media
Contratto
Vendita
Piano
Piano terra, 1
Piani edificio
1
Ascensore
No
Superficie
260 m² | commerciale 385 m²
Locali
5+
Camere da letto
6
Cucina
Cucina abitabile
Bagni
3+
Arredato
No
Balcone
Terrazzo
Box, posti auto
4 in parcheggio/garage comune
Riscaldamento
Autonomo, a radiatori, alimentato a gas
Altre caratteristiche
  • Esposizione doppia
  • Infissi esterni in doppio vetro / metallo
  • Mansarda
  • Porta blindata
  • Impianto tv centralizzato
Dettaglio superficie

Abitazione

Piano
Piano terra
Superficie
60,0 m²
Coefficiente
100%
Tipo superficie
Principale
Sup. commerciale
60,0 m²

Abitazione

Piano
Piano terra
Superficie
50,0 m²
Coefficiente
100%
Tipo superficie
Principale
Sup. commerciale
50,0 m²

Abitazione

Piano
1
Superficie
150,0 m²
Coefficiente
100%
Tipo superficie
Principale
Sup. commerciale
150,0 m²

Box o garage

Piano
Piano terra
Superficie
100,0 m²
Coefficiente
50%
Tipo superficie
Accessoria
Sup. commerciale
50,0 m²

Giardino

Piano
Piano terra
Superficie
750,0 m²
Coefficiente
10%
Tipo superficie
Accessoria
Sup. commerciale
75,0 m²
Informazioni sul prezzo
Prezzo
€ 365.000
Prezzo al m²
948 €/m²
New
Dettaglio dei costi
Spese condominio
Nessuna spesa condominiale
Efficienza energetica
  • Anno di costruzione

    2003
  • Stato

    Nuovo / In costruzione
  • Riscaldamento

    Autonomo, a radiatori, alimentato a gas
  • Certificazione energetica

    In attesa di certificazione
Planimetria
Schermata 2025-05-27 alle 19.21.16
Schermata 2025-05-27 alle 19.21.27
Schermata 2025-05-27 alle 19.21.24
Schermata 2025-05-27 alle 19.21.20
Schermata 2025-05-27 alle 19.21.32
Virtual tour
Scopri ogni angolo dell'immobile
+30
Inserzionista
scheda agenzia
Mutuo
%
Durata del mutuo

Rata da € 1.084 al mese

€ 109.500 (30%)

€ 255.500 (70%)

Vuoi sapere che mutuo puoi richiedere?

Opzioni aggiuntive

Contatta l'inserzionista

Oppure