Capannone in Vendita

€ 850.000
5+
680 m²
1

Nota

Annuncio aggiornato il 14/01/2025
Descrizione

riferimento: 60996169

COSA SAPERE SULL'IMMOBILE

SANTO STEFANO: proponiamo capannone in vendita.

DESCRIZIONE E PARTICOLARITÀ

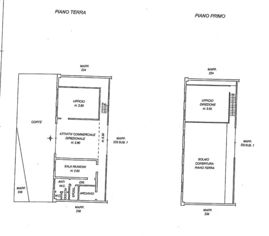
Il capannone si sviluppa su una metratura interna di 680 mq circa, suddivisi in 180 mq di zona commerciale cat. D08 e la restante parte artigianale cat. D07.

E' composto da un'ampia zona con soppalchi che hanno una portata di 300 kg l'uno.

Sono presenti due ampie celle frigo, da 62 e da 88 mq.

La parte commerciale si divide in ufficio, bagno e spogliatoio a piano terra e un soppalco con due uffici dotati di aria condizionata che possono essere utilizzati anche come sala riunioni.

L'altezza del capannone è 6 m circa e sotto i soppalchi l'altezza e 2,40m.

L'immobile ha un'area esterna di circa 700 mq completamente recintata, che può essere utilizzata sia come parcheggio sia come area di manovra.

All'esterno sono presenti delle prese di corrente da 380 e da 220 kw.

UBICAZIONE E CONTESTO

Santo Stefano di Magra è un comune di La Spezia di circa 10.000 abitanti e centro logistico dovuto dall'ingresso autostradale.

Il capannone si trova in località Pratolino, zona industriale a pochi minuti dal casello autostradale.
Caratteristiche
Contratto
Vendita
Tipologia
Capannone
Superficie
680 m²
Locali
5+ locali, 1 bagno
Piano
Piano terra
Piani edificio
1
Altezza capannone
6 m
Altre caratteristiche
  • Recintato
  • Spogliatoio
Dettaglio superficie

Capannone

Piano
Piano terra
Superficie
680,0 m²
Coefficiente
100%
Tipo superficie
Principale
Sup. commerciale
680,0 m²
Informazioni sul prezzo
Prezzo
€ 850.000
Prezzo al m²
1.250 €/m²
New
Efficienza energetica

Consumo di energia

≥ 175 kWh/m² annoG

Planimetria
Plan tagliata 1
Planimetria interna 1
Scopri ogni angolo dell'immobile
+25
Opzioni aggiuntive

Contatta l'inserzionista

Oppure