Capannone in Vendita

€ 340.000
4.318 m²

Nota

Annuncio aggiornato il 23/05/2025
Descrizione

riferimento: 5054

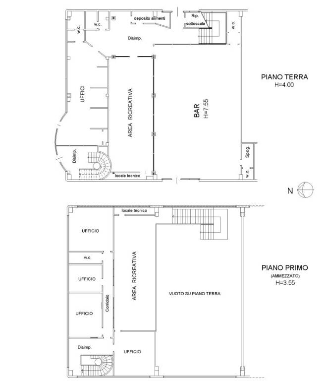
Capannone industriale in vendita a Città Sant’Angelo (PE), Via Strada Piano di Sacco n. 103

Cerved Property Services Italy S.r.l. propone in vendita un capannone con corte ed aree adiacenti siti nel Comune di Città Sant’Angelo in Via Strada Piano di Sacco n. 103. La zona è decentrata rispetto al centro urbano, da cui dista circa 7 km, il casello di riferimento dell'autostrada A14, è quello di Pescara Nord Montesilvano. L'immobile, di circa 4.320 mq, è composto da un fabbricato distinto in due porzioni di cui una commerciale e la restante produttiva, dotati di corti di pertinenza, per complessivi 1.380 mq, oltre ad aree libere scoperte, di circa 2.940 mq. Il fabbricato, di forma rettangolare regolare, presenta il fronte principale internamente elevato ai piani T e 1, destinati a commerciale, e la restante porzione sviluppata al solo piano terra, destinata ad opificio. Completa la proprietà una corte esclusiva che presenta piano di calpestio rifinito in asfalto e consente l’accesso dalla via pubblica alle unità. Per maggiori informazioni e per una visita in loco, vedasi riferimenti a lato.
Caratteristiche
Contratto
Vendita
Tipologia
Capannone
Superficie
4.318 m²
Informazioni sul prezzo
Prezzo
€ 340.000
Prezzo al m²
79 €/m²
New
Planimetria
Scopri ogni angolo dell'immobile
+41
Opzioni aggiuntive

Contatta l'inserzionista