Capannone in Vendita

€ 830.000
3
2.720 m²
3+

Nota

Annuncio aggiornato il 25/07/2025
Descrizione

riferimento: 61002804

COSA SAPERE SULL’IMMOBILE
Proponiamo in vendita capannone industriale ubicato a Borgoforte (Mn), precisamente in Via Verga.
DESCRIZIONE E PARTICOLARITÀ
L’immobile si compone di 6 campate con una superficie totale di circa 2.720 mq, è dotato di un soppalco aggiuntivo con una portata di 400 kg/mq di soletta, garantendo una robusta piattaforma per le vostre attività di magazzino.
Il capannone è dotato di una cabina elettrica di proprietà e di 3 carroponti con una capacità di sollevamento di 1,6 tonnellate ciascuno, ottimizzando l'efficienza nel movimento delle merci e delle attrezzature.
La struttura include una zona uffici di 30 mq, completo di impianti per garantire un ambiente confortevole per il personale.
Sono disponibili 5 accessi carrai, di cui 2 automatizzati e 12 portoni per agevolare il carico e lo scarico dei materiali in modo rapido e sicuro.
All'interno del capannone sono presenti 6 bagni e 3 locali aggiuntivi per adattarsi alle esigenze specifiche della vostra attività.
Questo capannone industriale rappresenta un'opportunità unica per espandere e ottimizzare le vostre operazioni commerciali.
CONTESTO ED UBICAZIONE
Mantova si trova nella Lombardia sud-orientale, non lontano dal lago di Garda e dal confine con le regioni Veneto ed Emilia-Romagna. Le città di riferimento più vicine sono Verona, 40 km a nord-est, Brescia, 70 km a nord-ovest, e Modena, 65 km a sud.
Se vuoi saperne di più, puoi parlare con mn2i1 Affiliato Tecnorete: INDUSTRIALE CASTIGLIONE SRL.

Di solito risponde entro 1 giorno

Caratteristiche
Contratto
Vendita
Tipologia
Capannone
Superficie
2.720 m²
Locali
3 locali, 3+ bagni
Piano
Piano terra, con accesso disabili
Piani edificio
1
Box, posti auto
20 in box privato/box in garage
Disponibilità
Libero
Campate
6 - con pilastri
Carroponti
3
Altre caratteristiche
  • Impianto di allarme
  • Reception
  • Recintato
Dettaglio superficie

Capannone

Piano
Piano terra
Superficie
2.720,0 m²
Coefficiente
100%
Tipo superficie
Principale
Sup. commerciale
2.720,0 m²
Informazioni sul prezzo
Prezzo
€ 830.000
Prezzo al m²
305 €/m²
New
Dettaglio dei costi
Spese condominio
Nessuna spesa condominiale
Efficienza energetica
  • Anno di costruzione

    1990
  • Stato

    Buono / Abitabile
  • Riscaldamento

    Autonomo, a radiatori, alimentato a metano
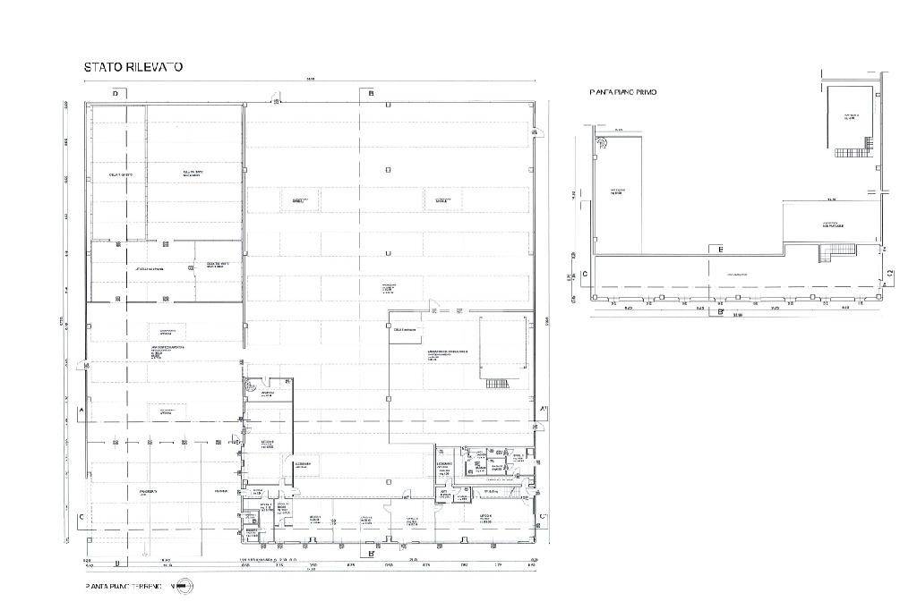
Planimetria
PLAN
Virtual tour
Scopri ogni angolo dell'immobile
+27
Inserzionista

mn2i1 Affiliato Tecnorete: INDUSTRIALE CASTIGLIONE SRL

scheda agenzia
Opzioni aggiuntive

Contatta l'inserzionista

Oppure

mn2i1 Affiliato Tecnorete: INDUSTRIALE CASTIGLIONE SRL