Locale commerciale in Vendita

€ 30.000
2
59 m²
1
T

Nota

Annuncio aggiornato il 09/09/2025
Descrizione

riferimento: EK-117499137

Negozio in vendita o affitto - Mercato San Severino (SA)

Vuoi avviare un'attività commerciale nel cuore pulsante di Mercato San Severino (SA)?
Proponiamo in vendita o affitto un negozio di 58 mq completamente ristrutturato.
Via Carmine Amato, 11 - Mercato San Severino (SA).

Il locale commerciale si trova in una posizione strategica e ben visibile, precisamente nei pressi del Lounge Bar Marylin in Piazza del Galdo - Sant' Angelo.
Data la posizione, è perfetto per chi desidera avviare una nuova attività.
Il negozio presenta una superficie versatile e facilmente personalizzabile, con ampie vetrine e un ambiente accogliente.
É dotato di due locali e un bagno accessibile a tutti.
Facile accesso e parcheggio nelle vicinanze.
Adatto a vari settori: retail, alimentari, articoli per la casa e molto altro.
Categoria catastale: C1

Non perdere l'opportunità di diventare il nuovo punto di riferimento di Mercato San Severino!
Contattaci per maggiori informazioni e per fissare una visita.
+39 335 7799568
+39 347 906 8732
gioia.domus@gmail.com
Caratteristiche
Contratto
Vendita | Immobile a reddito
Tipologia
Locale commerciale
Superficie
59 m²
Locali
2 locali, 1 bagno - uno o più adatto a persone disabili
Piano
Piano terra, con accesso disabili
Piani edificio
2
Altezza soffitti
3 m
Vetrine
2 vetrine su strada, 2 m lineari
Disponibilità
Libero
Altre caratteristiche
  • Cablato
  • Luci d'emergenza
  • Saracinesche manuali
Dettaglio superficie

Negozio - Locale commerciale

Piano
Piano terra
Superficie
58,8 m²
Coefficiente
100%
Tipo superficie
Principale
Sup. commerciale
58,8 m²
Informazioni sul prezzo
Prezzo
€ 30.000
Prezzo al m²
508 €/m²
New
Dettaglio dei costi
Spese condominio
Nessuna spesa condominiale
Efficienza energetica

Consumo di energia

≥ 3,51 kWh/m² annoG

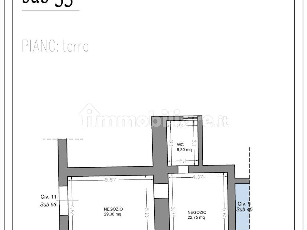
Planimetria
planimetria_negozio_mss_new_sept2025
Scopri ogni angolo dell'immobile
+2
Opzioni aggiuntive

Contatta l'inserzionista

Oppure