Capannone in Vendita

Prezzo su richiesta
673 m²

Nota

Annuncio aggiornato il 23/10/2025
Descrizione

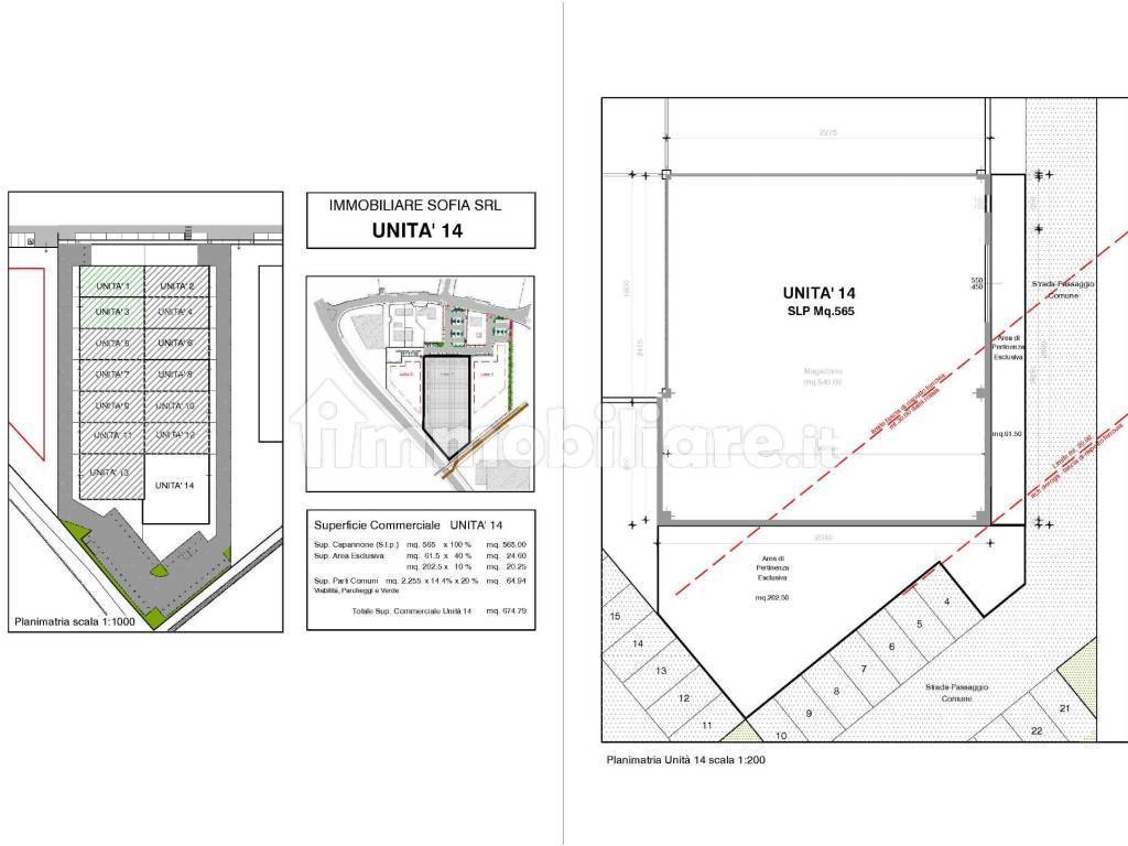
riferimento: n. 14

Capannone - Magazzino

Condominio costituito da un capannone ad uso MAGAZZINO, con la possibilità di adattarlo all’attività artigianale / industriale, della superfice complessiva coperta di circa mq 3930, suddiviso in porzioni di magazzini della superficie minima di circa 250 mq (s.l.p.); con la possibilità di poter accorpare gli stessi per realizzare superfici più ampie.
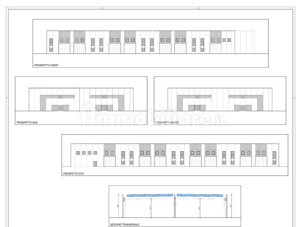
La copertura sarà in parte a "Shed" per permettere una illuminazione più performante in tutto il capannone e in parte a doppia TT, al fine di permettere il posizionamento dell’impianto fotovoltaico previsto dalle vigienti normative.
Tutti gli immobili saranno predisposti di scarichi per la futura eventuale esecuzione di servizi, spogliatoi e uffici.
Il materiale inserito nel presente annuncio è destinato al solo utilizzo personale. Il medesimo materiale non potrà essere girato come pure pubblicato per altri scopi, senza preventiva autorizzazione della presente o della società proprietaria del bene.
Vi diffidiamo pertanto ad utilizzare il predetto materiale informativo per altri scopi, oltre a quello espressamente personale, di pubblicarlo o di inserirlo in altri canali pubblicitari, con ogni riserva di agire per la tutela.
Per maggiori informazioni contattaci, senza impegno, via mail o attraverso il modulo di richiesta.
Vi saranno inviate le informazioni richieste entro 48ore, oppure contattate il numero 0423/434031.

IMMOBILIARE SOFIA S.R.L.
Via Corriva n. 65/A
31050 Vedelago (TV)

e mail: vendite@immobiliaresofia.it
telefono: 0423/434031
Se vuoi saperne di più, puoi parlare con IMMOBILIARE SOFIA.
Caratteristiche
Contratto
Vendita
Tipologia
Capannone
Superficie
673 m²
Piano
Piano terra
Piani edificio
1
Disponibilità
Libero
Altezza capannone
10,2 m
Altezza sottotrave
8 m
Altre caratteristiche
  • Passo carrabile
  • Recintato
Dettaglio superficie

Capannone

Piano
Piano terra
Superficie
565,0 m²
Coefficiente
100%
Tipo superficie
Principale
Sup. commerciale
565,0 m²

Terreno

Piano
Piano terra
Superficie
264,0 m²
Coefficiente
17%
Tipo superficie
Principale
Sup. commerciale
44,9 m²

Altro

Piano
Piano terra
Superficie
2.255,0 m²
Coefficiente
2.8%
Tipo superficie
Principale
Sup. commerciale
63,1 m²
Informazioni sul prezzo
Prezzo
Prezzo su richiesta
Planimetria
2024.11.07_Unità 14-2
2025.01.15_Soluzione Parch 2 (NUOVA)
Scopri ogni angolo dell'immobile
+18
Opzioni aggiuntive

Contatta l'inserzionista