Capannone in Affitto

€ 2.300/mese
336 m²

Nota

Zenso

Prestiti online e veloci

Confronta le offerte in 1 minuto

Annuncio aggiornato il 23/10/2025
Descrizione

riferimento: EK-117667173

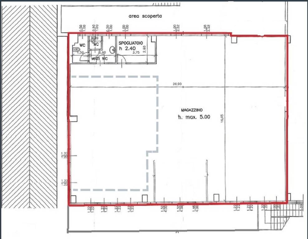
In locazione,capannone di circa 330 mq + area esterna, ideale per attività commerciali, deposito,magazzino.
L’immobile e in classe C/3 - Laboratori per arti e mestieri con altezza interna di 5 metri, dispone di doppi servizi
e divisione interna con pareti mobili. Sono presenti impianto di illuminazione,elettrico e riscaldamento nello stato di fatto.

Il canone mensile di locazione è di 2.300 euro oltre IVA.

Contatta l'inserzionista

Invia la tua richiesta per aumentare le possibilità di ricevere una risposta.

Caratteristiche
Contratto
Affitto
Tipologia
Capannone
Superficie
336 m² | commerciale 691 m²
Piano
Piano terra
Disponibilità
Libero
Altezza capannone
5 m
Altezza sottotrave
4,8 m
Altre caratteristiche
  • Impianto di allarme
  • Passo carrabile
  • Proprietà recintata
  • Spogliatoio
Dettaglio superficie

Laboratorio

Superficie
355,0 m²
Coefficiente
100%
Tipo superficie
Accessoria
Sup. commerciale
355,0 m²

Capannone

Piano
Piano terra
Superficie
336,0 m²
Coefficiente
100%
Tipo superficie
Principale
Sup. commerciale
336,0 m²
Informazioni sul prezzo
Prezzo
€ 2.300/mese
Prezzo al m²
3 €/m²
Dettaglio dei costi
Spese condominio
Nessuna spesa condominiale
Cauzione
Non indicata
Efficienza energetica

Consumo di energia

264 kWh/m² annoD

Planimetria
Inserzionista

marco cibelli

Opzioni aggiuntive

Contatta l'inserzionista

Contatta l'inserzionistaBeta

  • Ottieni subito tutte le info sull’immobile 24/7
  • Inoltra richieste direttamente al venditore

marco cibelli