Villa unifamiliare via Xxv Aprile, 40, Sorbolo, Sorbolo Mezzani

€ 550.000
5+
360 m²
3+
Balcone
Terrazzo
Solo Cucina Arredata
Cantina

Nota

Annuncio aggiornato il 28/01/2025
Descrizione

riferimento: SP 484

VILLA CONTEMPORANEA DEL CUORE DEL PAESE

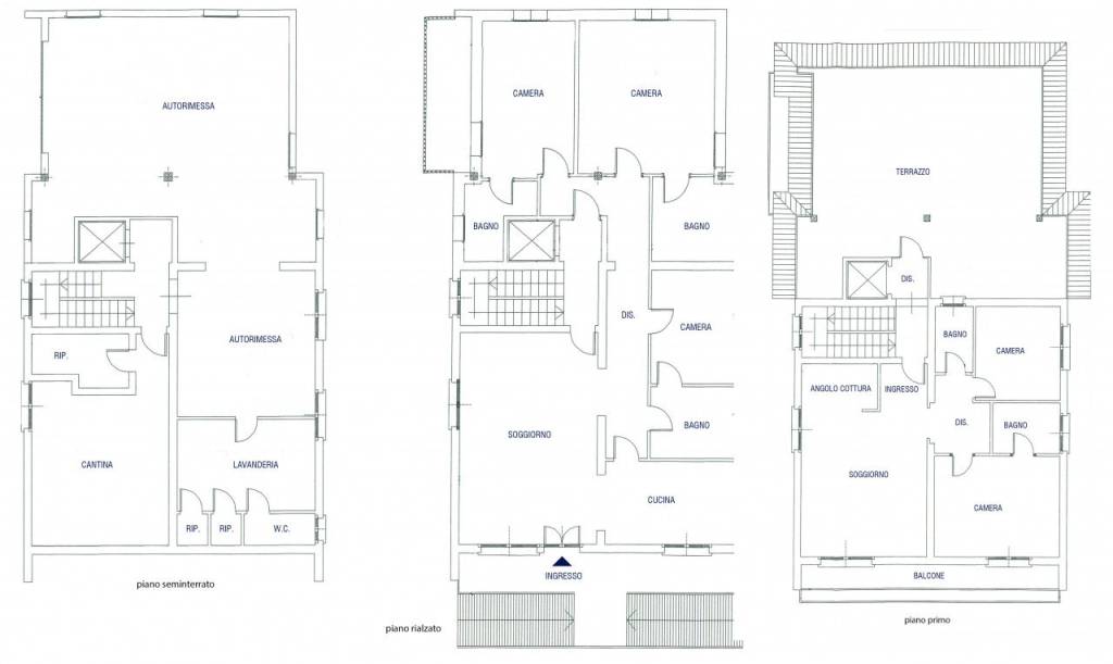
SORBOLO CENTRO: Vi proponiamo in vendita, nel cuore del centro cittadino, un'imponente villa contemporanea di ben 360 mq. Questa affascinante proprietà è strutturata per offrire due appartamenti separati, ideali per accogliere due nuclei familiari o come investimento residenziale.

La villa si distingue non solo per la sua posizione centrale ma anche per l'assenza totale di spese condominiali che garantisce ai residenti massima libertà e indipendenza. Immersa nella tranquillità del centro cittadino, questa abitazione offre una privacy incomparabile pur essendo comodamente vicina ai servizi principali: negozi caratteristici, scuole rinomate e mezzi pubblici efficienti sono tutti a portata di mano.

Caratterizzati da ampi spazi luminosi e moderni rivestimenti interni ed esterni eleganti, gli appartamenti presentano soggiorni spaziosi con cucina open space perfettamente integrata; ciascuna unità vanta camere confortevoli dotate di bagni privati. Grazie alle generose finestre utilizzate in tutto l'immobile le stanze sono illuminate naturalmente durante il giorno creando atmosfere calde e accoglienti.

Questa villa è stata ristrutturata con materiali pregiati volti a combinare estetica e funzionalità al fine di soddisfare ogni esigenza abitativa moderna. Inoltre la possibilità di personalizzare ulteriormente questo spazio conferisce opportunità sia ad una famiglia numerosa che agli investitori interessati alla creazione di unità autonome grazie all'esistenza dei doppio accesso già predisposto su entrambe i piani.

Un ulteriore punto forte della proprietà è rappresentato dall'ampio giardino curato dove poter trascorrere momenti all'aperto in assoluta serenità insieme alla terrazza panoramica di 90 mq ideale per organizzare cene o semplicemente godersi il sole nei giorni estivi.

La proprietà comprende cantine utilmente sfruttabili per contenere effetti personali o utensili vari. A disposizione troviamo anche locale tecnico, lavanderia dedicata oltre ad un bagno di servizio completo di doccia; uno spazio dedicato a deposito biciclette, un garage doppio dotato di bascula automatizzata raggiungibile tramite ascensore diretto dal piano sotterraneo fino all'abitazione contribuisce notevolmente allo standard qualitativo della vita quotidiana qui offerta.

Se vi ha colpito questa anticipazione non vi resta che fissare un appuntamento per visionare l'immobile oppure potete vedere il video integrale dell'immobile direttamente sul nostro canale YouTube digitando nella ricerca SANPOLOIMMOBILIARE nella sezione VILLE.
Caratteristiche
Tipologia
Villa unifamiliare | Intera proprietà | Immobile di lusso
Contratto
Vendita
Piano
2
Piani edificio
2
Ascensore
Superficie
360 m²
Locali
5+
Camere da letto
5
Cucina
Cucina abitabile
Bagni
3+
Arredato
Solo Cucina Arredata
Balcone
Terrazzo
Box, posti auto
2 in box privato/box in garage, 2 in parcheggio/garage comune
Riscaldamento
Autonomo, a radiatori, alimentato a gas
Climatizzazione
Autonomo, freddo
Altre caratteristiche
  • Esposizione esterna
  • Impianto di allarme
  • Infissi esterni in doppio vetro / legno
  • Porta blindata
  • Cancello elettrico
  • Impianto tv singolo
Dettaglio superficie

Abitazione

Piano
2
Superficie
360,0 m²
Coefficiente
100%
Tipo superficie
Principale
Sup. commerciale
360,0 m²
Informazioni sul prezzo
Prezzo
€ 550.000
Prezzo al m²
1.528 €/m²
New
Dettaglio dei costi
Spese condominio
Nessuna spesa condominiale
Efficienza energetica

Consumo di energia

≥ 3,51 kWh/m² annoG

Planimetria
plani completa
Scopri ogni angolo dell'immobile
+82
Mutuo
%
Durata del mutuo

Rata da € 1.634 al mese

€ 165.000 (30%)

€ 385.000 (70%)

Vuoi sapere che mutuo puoi richiedere?

Opzioni aggiuntive

Contatta l'inserzionista

Oppure