Villa a schiera via Monsignor Pietro Santi, Castrezzato

€ 398.000
4
119 m²
2
No

Nota

Annuncio aggiornato il 14/04/2025
Descrizione

riferimento: 96319

Villa in vendita a Castrezzato

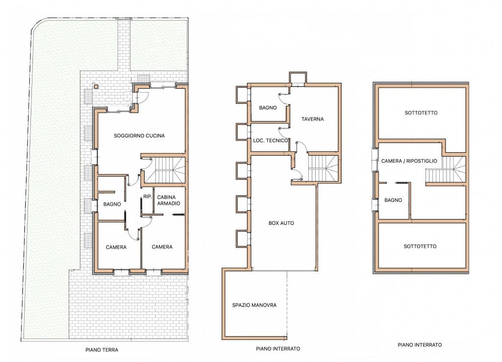
Proponiamo in vendita Villa di testa a Castrezzato.
L’immobile si compone da zona giorno con cucina a vista tramite il disimpegno si accede alla zona notte dove troviamo il bagno finestrato, ripostiglio, due camere da letto di cui una con cabina armadio.

Al primo piano troviamo una camera/ripostiglio con travi a vista e bagno finestrato.

Tramite le scale interne si accede alla taverna con bagno, locale tecnico e box auto doppio parallelo, all’esterno abbiamo altri due posti auto coperti.

Completano l’immobile giardino libero su due lati e corte esclusiva.

Finiture: riscaldamento a pavimento, portoncino blindato, impianto fotovoltaico, predisposizione aria condizionata, pompa di calore, serramenti in pvc, tapparelle motorizzate.

Per info e vendite: Luca 3477848731
Caratteristiche
Tipologia
Villa a schiera | Intera proprietà | Classe immobile signorile
Contratto
Vendita
Piano
Piano terra, 1
Piani edificio
2
Ascensore
No
Superficie
119 m² | commerciale 162,1 m²
Locali
4
Camere da letto
3
Cucina
Cucina a vista
Bagni
2
Box, posti auto
2 in box privato/box in garage
Riscaldamento
Autonomo, a pavimento, alimentato a fotovoltaico
Climatizzazione
Autonomo, freddo/caldo
Altre caratteristiche
  • Porta blindata
  • Taverna
Dettaglio superficie

Abitazione

Piano
Piano terra
Superficie
84,0 m²
Coefficiente
100%
Tipo superficie
Principale
Sup. commerciale
84,0 m²

Abitazione

Piano
1
Superficie
34,5 m²
Coefficiente
100%
Tipo superficie
Principale
Sup. commerciale
34,5 m²

Cantina

Piano
Interrato (-1)
Superficie
35,8 m²
Coefficiente
25%
Tipo superficie
Accessoria
Sup. commerciale
9,0 m²

Box o garage

Piano
Interrato (-1)
Superficie
42,7 m²
Coefficiente
50%
Tipo superficie
Accessoria
Sup. commerciale
21,4 m²

Giardino

Piano
Piano terra
Superficie
132,4 m²
Coefficiente
10%
Tipo superficie
Accessoria
Sup. commerciale
13,2 m²
Informazioni sul prezzo
Prezzo
€ 398.000
Prezzo al m²
2.455 €/m²
New
Efficienza energetica

Consumo di energia

≥ 3,51 kWh/m² annoA3

Planimetria
Screenshot 2024-11-25 alle 16.36.59
Scopri ogni angolo dell'immobile
+18
Opzioni aggiuntive

Contatta l'inserzionista

Oppure