Terreno agricolo in Vendita

€ 250.000
45.000 m²

Nota

Annuncio aggiornato il 28/10/2025
Descrizione

riferimento: EK-117814929

Meraviglioso agrumeto sito in agro del Comune di Castellaneta alla
Contrada "Tartaretta" (Castellaneta Marina dista solo 4 km) di natura in parte Uliveto, in parte
Agrumeto, con ivi insistente pozzo e
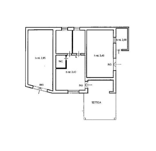
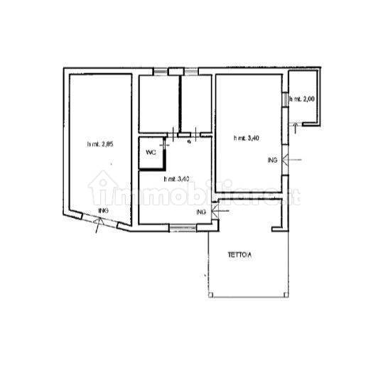
pertinenziale fabbricato ad uso agricolo della superficie di
circa mq. 165 (centosessantacinque metri quadrati) e posto
al piano terra, della superficie catastale complessiva, det-
to fondo, di ettari 4.44. La proprietà gode di una posizione invidiabile poiché si trova a pochi chilometri dalla strada statale 106, dispone di impianto di irrigazione automatico con elettrovalvole elettroniche. Volendo è possibile costruire ulteriori 400 mq, oltre i 165mq della casa già presente, con la possibilità di progettare una piscina. La proprietà rappresenta un'ottima soluzione d'investimento, il terreno agricolo è composto da 1000 piante di clementine e 640 piante di arancio e circa 100 alberi d'ulivo. Ottimo come investimento per struttura ricettiva o BeB essendo a pochi minuti da Castellaneta Marina e dalla nota discoteca ''Il Nafoura''.
Caratteristiche
Contratto
Vendita | Immobile a reddito
Tipologia
Terreno Agricolo
Superficie
45.000 m²
Disponibilità
Libero
Dislivello terreno
Leggero
Accesso in strada/servitù di passaggio
Non presente
Altre caratteristiche
  • Agrumeto
  • Allaccio acqua
  • Allaccio elettricità
  • Uliveto
Informazioni sul prezzo
Prezzo
€ 250.000
Prezzo al m²
6 €/m²
Planimetria
Scopri ogni angolo dell'immobile
+6
Inserzionista

Privato

Telefono

Opzioni aggiuntive

Contatta l'inserzionista

Privato

Telefono