Locale commerciale in Vendita

€ 129.000
2
76 m²
1
T

Nota

Annuncio aggiornato il 27/01/2025
Descrizione

riferimento: EK-117819527

NEGOZIO ZONA STRATEGICA

IVREA - CORSO MASSIMO D'AZEGLIO

Proponiamo in vendita locale commerciale situato in posizione di grande visibilità lungo Corso Massimo d’Azeglio, zona caratterizzata da un intenso passaggio pedonale e veicolare e a pochi passi dal centro storico. L’immobile, fronte strada, dispone di due ampie vetrine ideali per l’esposizione di merce o per l’installazione di cartelloni pubblicitari, offrendo una perfetta visibilità per qualsiasi tipo di attività commerciale.

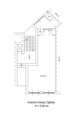
Con una superficie di circa 75 mq, il locale comprende anche un bagno e una spaziosa cantina situata al piano interrato, utile come area magazzino o per esigenze di stoccaggio. Gli interni sono in ottime condizioni, con illuminazione a LED a soffitto che rende l’ambiente moderno e accogliente.

Il sistema di sicurezza include videosorveglianza, antifurto e tapparelle automatizzate comandabili sia internamente che tramite telecomando. Inoltre, l’ingresso principale è dotato di un’apertura automatizzata azionabile con un pulsante, mentre il sistema audio con altoparlanti integrati a soffitto aggiunge un tocco di praticità per chi desidera diffondere musica o messaggi all’interno del locale.

Un ulteriore vantaggio è rappresentato dal fatto che il prezzo di vendita comprende tutto l’arredamento presente, rendendo l’immobile pronto per l’uso immediato.

Il parcheggio condominiale ad uso esclusivo dei condomini, accessibile tramite una sbarra, rappresenta un ulteriore valore aggiunto, offrendo comodità.

L’immobile è dotato di un impianto di riscaldamento centralizzato, con l’alternativa di un sistema autonomo grazie alle pompe di calore in grado di generare sia aria calda che fredda, garantendo comfort in ogni stagione.

Per ulteriori informazioni e appuntamenti:
Gabetti Ivrea - Via Jervis n.64
Se vuoi saperne di più, puoi parlare con Riccardo Bich.

Di solito risponde entro 1 giorno

Caratteristiche
Contratto
Vendita
Tipologia
Locale commerciale
Superficie
76 m²
Locali
2 locali, 1 bagno, doppio ingresso
Piano
Piano terra, con accesso disabili
Piani edificio
6
Altezza soffitti
2,5 m
Vetrine
2 vetrine su strada, 3 m lineari
Ultima attività svolta
Cartoleria - Copisteria
Disponibilità
Libero
Altre caratteristiche
  • Arredato
  • Cablato
  • Impianto di allarme
  • Luci d'emergenza
  • Saracinesche automatiche
  • Uscita emergenza
  • Vigilanza CCTV
  • Esposizione sud, est
Dettaglio superficie

Negozio - Locale commerciale

Piano
Piano terra
Superficie
76,0 m²
Coefficiente
100%
Tipo superficie
Principale
Sup. commerciale
76,0 m²
Informazioni sul prezzo
Prezzo
€ 129.000
Prezzo al m²
1.697 €/m²
New
Dettaglio dei costi
Spese condominio
€ 110/mese
Efficienza energetica

Consumo di energia

≥ 175 kWh/m² annoE

Planimetria
pln foto
Scopri ogni angolo dell'immobile
+12
Opzioni aggiuntive

Contatta l'inserzionista

Oppure