Terreno edificabile in Vendita

€ 800.000
4.000 m²

Nota

Annuncio aggiornato il 12/02/2025
Descrizione

riferimento: MI26210

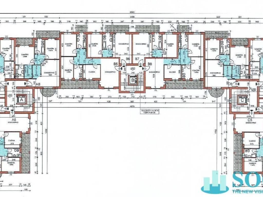
Terreno residenziale in vendita a Peschiera Borromeo

Proponiamo in vendita terreno edificabile di 4000 mq a Peschiera Borromeo
Proponiamo in vendita un terreno edificabile a destinazione residenziale di 4000 mq a Peschiera Borromeo.

Proponiamo in vendita un ampio e strategico terreno residenziale pianeggiante di circa 4000 M² a Peschiera Borromeo.
Grazie alla conformazione del terreno e al progetto già approvato con oneri in parte già versati, è possibile edificare fino a 2575 M², rendendolo ideale per la realizzazione di un condominio moderno e di alto livello.
La zona in cui si trova il terreno è di grande interesse per la sua vicinanza a servizi e attività commerciali, rendendolo una scelta strategica per chi desidera abitare in un contesto tranquillo e ben collegato.
Se vuoi saperne di più, puoi parlare con Marco De Luigi.
Caratteristiche
Contratto
Vendita
Tipologia
Terreno edificabile
Superficie
4.000 m²
Disponibilità
Libero
Qualificazione urbanistica
Unità multiple
Dislivello terreno
Leggero
Altezza massima edificabile
15 m
Area edificabile
2.575 m²
Accesso in strada/servitù di passaggio
In strada asfaltata
Altre caratteristiche
  • Allaccio acqua
  • Allaccio elettricità
  • Allaccio fogne
  • Allaccio gas
  • Illuminazione pubblica
  • Recintato
Informazioni sul prezzo
Prezzo
€ 800.000
Prezzo al m²
200 €/m²
New
Scopri ogni angolo dell'immobile
+2
Opzioni aggiuntive

Contatta l'inserzionista

Oppure