Terratetto unifamiliare via della Roggia, Centro, Manzano

€ 145.000
5+
286 m²
2
No
Balcone
Cantina

Nota

Annuncio aggiornato il 13/10/2025
Descrizione

riferimento: 128.25

Abitazione con accessori e terreni

A Manzano in Borgo Tinet, si propone in vendita intero complesso immobiliare costituito da diversi fabbricati.
La realtà in oggetto ha accesso diretto dalla pubblica via ed è composta da due abitazioni accostate le quali si sviluppano su tre livelli ed indipendenti tra di loro, un fabbricato adibito ad autorimessa ed un ampio magazzino il quale si sviluppa su due livelli.
Adiacente ai fabbricati sopra descritti e contiguo a detta particella, è presente un terreno di circa mq 2760 il quale ricade in zona edificabile B3 per circa la metà della superficie.
Di fronte al fabbricato principale sono presenti inoltre altre due particelle di terreno di cui una agricola di circa mq 1700.
I fabbricati abitativi necessitano di intervento di ristrutturazione.
Per maggiori informazioni o per fissare un appuntamento contatta il Filo Rosso Immobiliare.
Se vuoi saperne di più, puoi parlare con Davide Gorasso.
Caratteristiche
Tipologia
Terratetto unifamiliare | Intera proprietà | Classe immobile media
Contratto
Vendita
Piano
Piano terra
Piani edificio
3
Ascensore
No
Superficie
286 m² | commerciale 4.931,5 m²
Locali
5+
Camere da letto
5
Cucina
Cucina abitabile
Bagni
2
Arredato
No
Balcone
Terrazzo
No
Box, posti auto
2 in box privato/box in garage, 2 in parcheggio/garage comune
Altre caratteristiche
  • Caminetto
  • Esposizione doppia
  • Infissi esterni in vetro / legno
  • Mansarda
  • Impianto tv singolo
Dettaglio superficie

Abitazione

Piano
Piano terra
Superficie
192,0 m²
Coefficiente
100%
Tipo superficie
Principale
Sup. commerciale
192,0 m²

Abitazione

Piano
Piano terra
Superficie
82,0 m²
Coefficiente
100%
Tipo superficie
Principale
Sup. commerciale
82,0 m²

Box o garage

Piano
Piano terra
Superficie
23,0 m²
Coefficiente
50%
Tipo superficie
Principale
Sup. commerciale
11,5 m²

Box o garage

Piano
1
Superficie
312,0 m²
Coefficiente
50%
Tipo superficie
Accessoria
Sup. commerciale
156,0 m²

Terreno

Piano
Piano terra
Superficie
1.730,0 m²
Coefficiente
100%
Tipo superficie
Accessoria
Sup. commerciale
1.730,0 m²

Terreno

Piano
Piano terra
Superficie
2.760,0 m²
Coefficiente
100%
Tipo superficie
Accessoria
Sup. commerciale
2.760,0 m²
Informazioni sul prezzo
Prezzo
€ 145.000
Prezzo al m²
29 €/m²
New
Dettaglio dei costi
Spese condominio
Nessuna spesa condominiale
Efficienza energetica

Consumo di energia

≥ 3,51 kWh/m² annoG

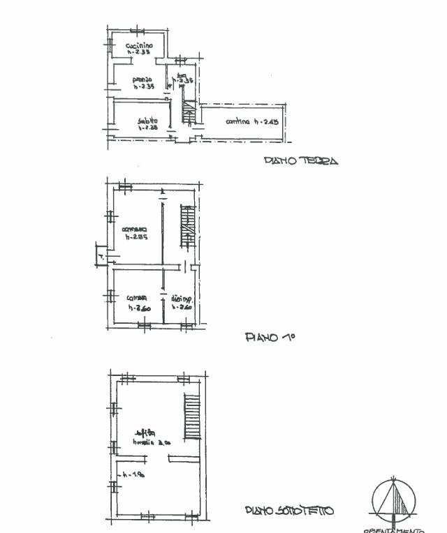
Planimetria
abitazione 1
abitazione2
magazzino
piano regolatore
Virtual tour
Scopri ogni angolo dell'immobile
+17
Mutuo
%
Durata del mutuo

Rata da € 431 al mese

€ 43.500 (30%)

€ 101.500 (70%)

Vuoi sapere che mutuo puoi richiedere?

Opzioni aggiuntive

Contatta l'inserzionista

Oppure