Garage - Box in Vendita

€ 22.000
22 m²

Nota

Annuncio aggiornato il 11/10/2025
Descrizione

riferimento: 60555879

La TECNOCASA di Atripalda (AV) propone nel Comune di Manocalzati (AV) - adiacente a Progress dei box-garage in vendita.

Dotati di serranda elettrica.
Tel: 0825/623504 - Siamo in Via Roma n° 163/165
Se vuoi saperne di più, puoi parlare con Fausto Gerardo Iandiorio ..

Di solito risponde entro 2 giorni

Caratteristiche
Contratto
Vendita
Tipologia
Garage - Box
Superficie
22 m²
Disponibilità
Libero
Informazioni sul prezzo
Prezzo
€ 22.000
Prezzo al m²
1.000 €/m²
New
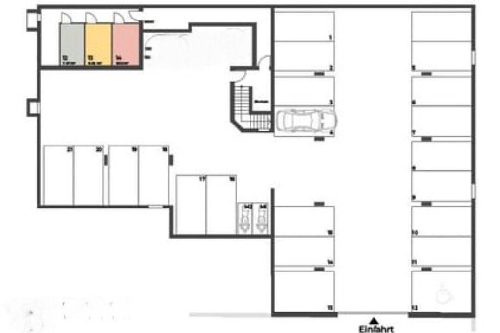
Planimetria
Nuova planimetria
Nuova planimetria
Scopri ogni angolo dell'immobile
+5
Opzioni aggiuntive

Contatta l'inserzionista

Oppure