Villa a schiera via John Fitzgerald Kennedy, Specchia

€ 175.000
5
130 m²
2

Nota

Annuncio aggiornato il 19/07/2025
Descrizione

riferimento: SPECCHIA 3

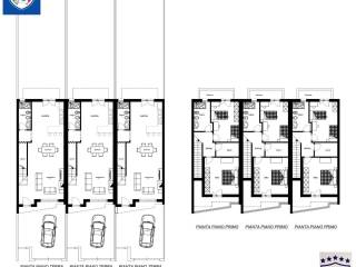
Villetta indipendente a schiera nuova costruzione a Specchia

Villette schiera in vendita in una zona esclusiva a Specchia in provincia di Lecce nel Salento, vicino alle marine di Torre Vado, Pescoluse, Lido Marini.
Il prezzo di vendita esposto è riferito alla villetta centrale, le due laterali il prezzo è di euro 185.000 cadauna. Le nostre villette sono disegnate con geometrie semplici ed essenziali. composta da unita' immobiliari indipendenti, moderne e giovanili con ampi spazi perfetti sia all'interno che all'esterno da condividere con gli amici o per regalarsi un sereno relax I materiali utilizzati sono di altissima qualita', e le strutture hanno i vari solai divisi per evitare sia rumori impattivi che aerei, usando materiali per l'isolamento acustico di altissima qualita', tecnologia ed ecocompatibili SU TUTTE LE FACCIATE VERRA' POSIZIONATO UN CAPPOTTO TERMICO.
Se vuoi saperne di più, puoi parlare con LEONARDO RICCIO.
Caratteristiche
Tipologia
Villa a schiera | Intera proprietà
Contratto
Vendita
Piano
Piano terra
Piani edificio
2
Superficie
130 m²
Locali
5
Camere da letto
2
Cucina
Cucina a vista
Bagni
2
Box, posti auto
1 in parcheggio/garage comune
Riscaldamento
Autonomo, a pavimento, alimentato a metano
Climatizzazione
Autonomo, caldo
Altre caratteristiche
  • Impianto di allarme
  • Infissi esterni in triplo vetro / PVC
  • Impianto tv singolo
Dettaglio superficie

Abitazione

Piano
Piano terra
Superficie
130,0 m²
Coefficiente
100%
Tipo superficie
Principale
Sup. commerciale
130,0 m²
Informazioni sul prezzo
Prezzo
€ 175.000
Prezzo al m²
1.346 €/m²
New
Efficienza energetica

Consumo di energia

≥ 175 kWh/m² annoG

Scopri ogni angolo dell'immobile
+11
Mutuo
%
Durata del mutuo

Rata da € 520 al mese

€ 52.500 (30%)

€ 122.500 (70%)

Vuoi sapere che mutuo puoi richiedere?

Opzioni aggiuntive

Contatta l'inserzionista

Oppure