Trilocale via dei Prati, Centro, Pergine Valsugana

€ 205.000
3
63 m²
1
Terrazzo
Parzialmente Arredato
Cantina

Nota

Annuncio aggiornato il 13/11/2025
Descrizione

riferimento: 13327

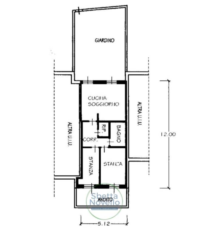
APPARTAMENTO DUE CAMERE CON GIARDINO

Proponiamo in vendita un accogliente appartamento al piano terra, caratterizzato da un ingresso indipendente e da un giardino privato, perfetto per chi desidera uno spazio esterno da vivere in tranquillità.

L’interno dell’abitazione è ben distribuito: la zona giorno è un pratico open-space che unisce soggiorno e cucina in un ambiente funzionale e accogliente.
La zona notte è composta da due camere da letto, una matrimoniale e una singola, ideali sia per una famiglia che per chi necessita di uno studio.
Il bagno è cieco, ma ben organizzato.
La casa dispone anche di un comodo ripostiglio, utile per tenere tutto in ordine.

Dal punto di vista degli impianti, l’appartamento è dotato di riscaldamento autonomo con caldaia indipendente e di un sistema a radiatori, che permette di gestire al meglio la temperatura in ogni stagione.

A completare la proprietà ci sono un garage e una cantina al piano interrato, perfetti per chi ha bisogno di spazio aggiuntivo.

Se sei alla ricerca di una casa, con indipendenza e un bel giardino, questa potrebbe essere la soluzione giusta per te.

L’appartamento è attualmente locato fino al 30.04.2026
Se vuoi saperne di più, puoi parlare con Matteo Novello.
Caratteristiche
Tipologia
Appartamento | Intera proprietà | Classe immobile media
Contratto
Vendita
Piano
Interrato (-1), piano terra
Piani edificio
5
Superficie
63 m² | commerciale 76,2 m²
Locali
3
Camere da letto
2
Cucina
Cucina abitabile
Bagni
1
Arredato
Parzialmente Arredato
Terrazzo
Box, posti auto
1 in box privato/box in garage
Riscaldamento
Autonomo, a radiatori, alimentato a metano
Altre caratteristiche
  • Armadio a muro
  • Esposizione esterna
  • Fibra ottica
  • Infissi esterni in doppio vetro / legno
  • Porta blindata
  • Cancello elettrico
  • VideoCitofono
Dettaglio superficie

Abitazione

Piano
Piano terra
Superficie
62,0 m²
Coefficiente
100%
Tipo superficie
Principale
Sup. commerciale
62,0 m²

Giardino

Piano
Piano terra
Superficie
57,0 m²
Coefficiente
10%
Tipo superficie
Accessoria
Sup. commerciale
5,7 m²

Box o garage

Piano
Interrato (-1)
Superficie
15,0 m²
Coefficiente
50%
Tipo superficie
Accessoria
Sup. commerciale
7,5 m²

Cantina

Piano
Interrato (-1)
Superficie
4,0 m²
Coefficiente
25%
Tipo superficie
Principale
Sup. commerciale
1,0 m²
Informazioni sul prezzo
Prezzo
€ 205.000
Prezzo al m²
2.690 €/m²
New
Efficienza energetica

Consumo di energia

≥ 175 kWh/m² annoD

Planimetria
PLANIMETRIE
Scopri ogni angolo dell'immobile
+35
Mutuo
%
Durata del mutuo

Rata da € 609 al mese

€ 61.500 (30%)

€ 143.500 (70%)

Vuoi sapere che mutuo puoi richiedere?

Opzioni aggiuntive

Contatta l'inserzionista

Oppure