Villa bifamiliare via Pinerolo-Susa 20, Bruino

€ 435.000
5
167 m²
2
Lusso
Balcone
Terrazzo
Cantina

Nota

Annuncio aggiornato il 31/10/2025
Descrizione

riferimento: EK-118361487

Porzione di VILLA Bifamiliare

Porzione di Villa del Tipo Bifamiliare, zona centrale a Bruino , riservata, comoda ai servizi e molto soleggiata.
L'immobile è composto da due porzioni completamente indipendenti fra loro, dotate di due ingressi carrai e pedonali separati.
La Villa attualmente è in costruzione e si sviluppa a due piani fuori-terra del tutto abitabili (no sottotetto) ; circondata da ampio giardino a filo marciapiede arricchito da ampio solarium esposto rigorosamente a SUD.
Al Piano Terra: luminosissimo soggiorno completo di zona pranzo, zona relax e cucina, camera, bagno , cantina, ripostiglio e box per due auto.
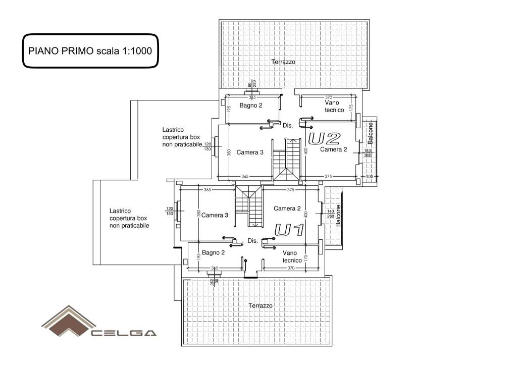
Al Piano Primo: zona notte composta da due camere, bagno (divisibile in due), lavanderia/stireria e ampia terrazza.
La Tecnica Costruttiva, i materiali installati e tutti gli accorgimenti scelti saranno tali da garantire un ALTO Livello Energetico all’immobile che al termine dei Lavori sarà Certificato in Classe A.
L’obiettivo finale è ottenere un livello dell’abitare gradevole e di alto confort e allo stesso tempo un risparmio importante nella gestione economica dei consumi.
Tutto ciò si traduce in :
1) Coibentazione termo-acustica attraverso l’impiego di materiali isolanti e fono assorbenti;
2) Esposizione della zona giorno rigorosamente a SUD e camere comunque direzionate ad un ampio e diffuso soleggiamento;
3) Infissi altamente performanti e progettati nell’ottica del risparmio energetico;
4) Grandi vetrate nella zona giorno;
5) Impianto termico a pannelli radianti gestito da Pompa di Calore a sistema compatto - VMC (predisposta) ;
5) Impianto fotovoltaico con possibilità di accumulo.
Disponibili a fissare incontri direttamente in cantiere per visionare l'immobile.
Caratteristiche
Tipologia
Villa bifamiliare | Classe immobile signorile
Contratto
Vendita
Piano
Piano terra, 1
Piani edificio
2
Superficie
167 m²
Locali
5
Camere da letto
3
Cucina
Cucina cucinotto
Bagni
2
Balcone
Terrazzo
Box, posti auto
2 in box privato/box in garage, 1 in parcheggio/garage comune
Riscaldamento
Autonomo, a pavimento
Climatizzazione
Predisposizione impianto
Altre caratteristiche
  • Esposizione esterna
  • Fibra ottica
  • Infissi esterni in triplo vetro / PVC
  • Porta blindata
  • Cancello elettrico
  • Impianto tv singolo
  • VideoCitofono
Dettaglio superficie

Abitazione

Piano
Piano terra
Superficie
87,0 m²
Coefficiente
100%
Tipo superficie
Principale
Sup. commerciale
87,0 m²

Abitazione

Piano
1
Superficie
50,0 m²
Coefficiente
100%
Tipo superficie
Principale
Sup. commerciale
50,0 m²

Posto auto

Piano
Piano terra
Superficie
30,0 m²
Coefficiente
100%
Tipo superficie
Principale
Sup. commerciale
30,0 m²
Informazioni sul prezzo
Prezzo
€ 435.000
Prezzo al m²
2.605 €/m²
New
Dettaglio dei costi
Spese condominio
Nessuna spesa condominiale
Efficienza energetica

Consumo di energia

≥ 3,51 kWh/m² annoA4

Planimetria
Planimetria PIANO Terra marzo 2025 1
Planimetria PIANO Primo marzo 2025 1
Scopri ogni angolo dell'immobile
+6
Mutuo
%
Durata del mutuo

Rata da € 1.292 al mese

€ 130.500 (30%)

€ 304.500 (70%)

Vuoi sapere che mutuo puoi richiedere?

Opzioni aggiuntive

Contatta l'inserzionista

Oppure