map icon

Locale commerciale in Vendita

Cadeo
€ 310.000
5
530 m²
2

Nota

Annuncio aggiornato il 19/02/2025
Descrizione

riferimento: 31174562-BC-031

Locale a Cadeo

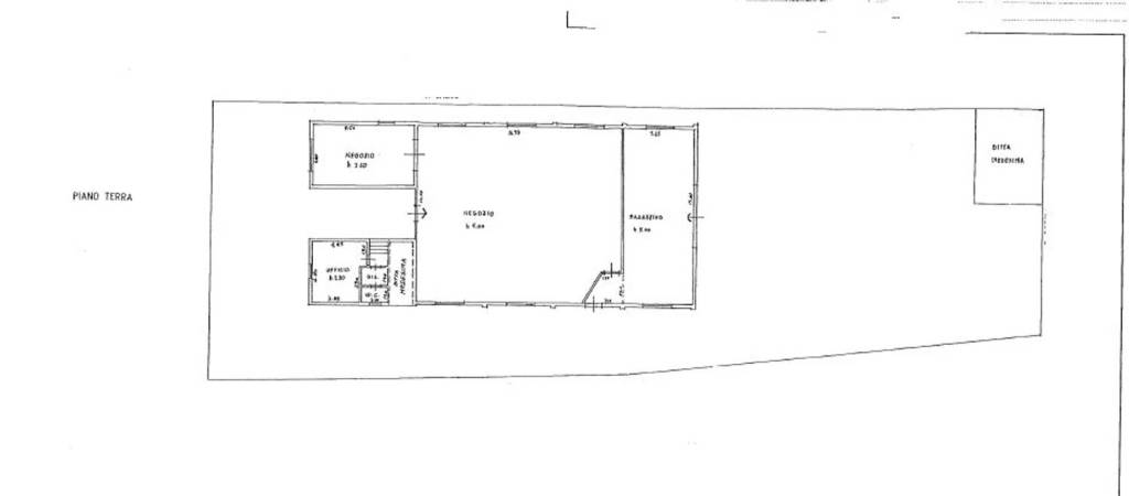
Codice Annuncio BC-031 - CADEO - Tra Piacenza e Fiorenzuola d'Arda in posizione di forte passaggio, proponiamo locale commerciale di circa 600 mq con vetrine fronte strada, composto da unico ambiente con soppalco, uffici, servizi e magazzino. Area cortilizia ad uso esclusivo di circa 300 mq. Riscaldamento con pompa di calore. Classe Energetica E. Completa la proprietà appartamento di 130 mq posto al piano primo. L'immobile è così composto: ingresso, soggiorno con affaccio su balcone, cucina abitabile, due camere da letto (con possibilità di ricavare la terza camera) bagno e ripostiglio. Cantina e box/deposito di 50 mq. Riscaldamento Autonomo. Classe Energetica E.
Caratteristiche
Contratto
Vendita
Tipologia
Locale commerciale
Superficie
530 m²
Locali
5 locali, 2 bagni
Informazioni sul prezzo
Prezzo
€ 310.000
Prezzo al m²
585 €/m²
New
Planimetria
Scopri ogni angolo dell'immobile
+21
Opzioni aggiuntive

Contatta l'inserzionista

Oppure