Locale con laboratorio in Vendita

€ 1.100.000
5+
822 m²
3+
T

Nota

Annuncio aggiornato il 08/09/2025
Descrizione

riferimento: Negozio Milano

822 mq di visibilità nel cuore dinamico di Milano.

Immagina un grande open space dal carattere deciso, vetrine che si affacciano su una zona viva e strategica, e ambienti interni pensati per ospitare più funzioni, senza compromessi tra immagine e operatività.
Questo spazio commerciale di oltre 800 mq è l’opportunità ideale per chi vuole creare, investire o espandersi in una zona servita e in continuo sviluppo, a due passi dalla metropolitana di Viale Argonne.
Tre vetrine su strada, doppio ingresso, laboratori, sale operative e oltre 3 bagni.
Gli ambienti si distribuiscono su tre livelli e possono essere riconfigurati secondo le esigenze dell’attività.
Qui convivono eleganza e praticità: pavimentazione di design, angoli reception, spazi break e ambienti tecnici attrezzati.
Dotato di tutti i comfort e sistemi di sicurezza: allarme, videosorveglianza, rilevatori antincendio, uscita di emergenza, passo carraio, impianti aggiornati, ambienti climatizzati.
L’immobile è libero e immediatamente disponibile, pronto per essere adattato a showroom, coworking, sede aziendale, studio associato, laboratorio creativo o concept store.
Vuoi un business con spazio per crescere? Questo è il posto giusto.
Contattaci ora e vieni a scoprirlo dal vivo: visione su appuntamento.
Se vuoi saperne di più, puoi parlare con .. ...
Caratteristiche
Contratto
Vendita | Immobile a reddito
Tipologia
Locale commerciale con laboratorio
Superficie
822 m²
Locali
5+ locali, 3+ bagni, doppio ingresso
Piano
Piano terra
Piani edificio
3
Vetrine
3 vetrine su strada
Ultima attività svolta
Altro
Disponibilità
Libero
Altre caratteristiche
  • Impianto di allarme
  • Passo carrabile
  • Posizione ad angolo
  • Rilevatori antincendio
  • Uscita emergenza
  • Vigilanza CCTV
Dettaglio superficie

Negozio - Locale commerciale

Piano
Piano terra
Superficie
822,0 m²
Coefficiente
100%
Tipo superficie
Principale
Sup. commerciale
822,0 m²
Informazioni sul prezzo
Prezzo
€ 1.100.000
Prezzo al m²
1.338 €/m²
New
Dettaglio dei costi
Spese condominio
€ 100/mese
Efficienza energetica

Consumo di energia

≥ 175 kWh/m² annoD

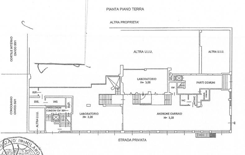
Planimetria
PIANTA 1
PIANTA 2
Scopri ogni angolo dell'immobile
+32
Opzioni aggiuntive

Contatta l'inserzionista

Oppure