Terreno edificabile in Vendita

€ 400.000
1.065 m²

Nota

Annuncio aggiornato il 25/07/2025
Descrizione

riferimento: MRV 27134

ZOLA PREDOSA - TERRENO EDIFICABILE

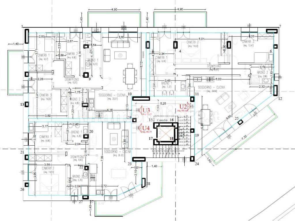
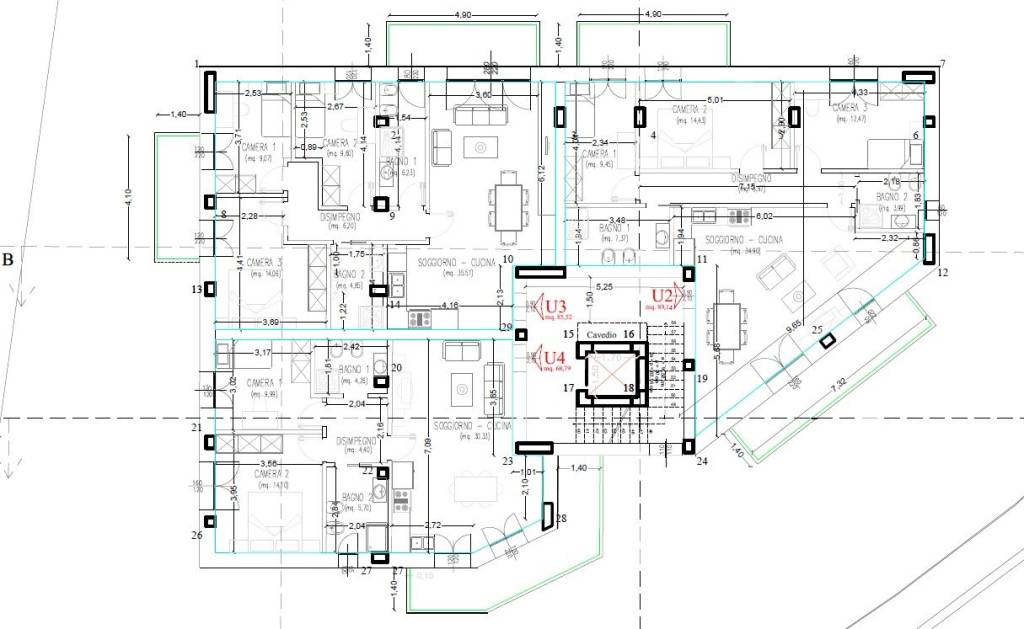
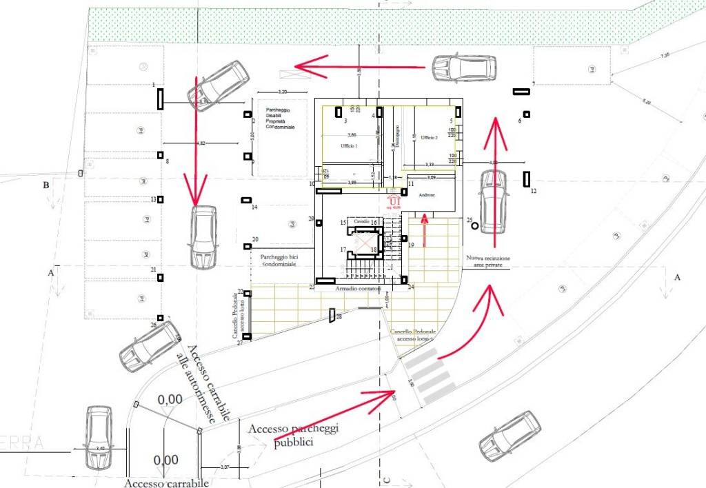
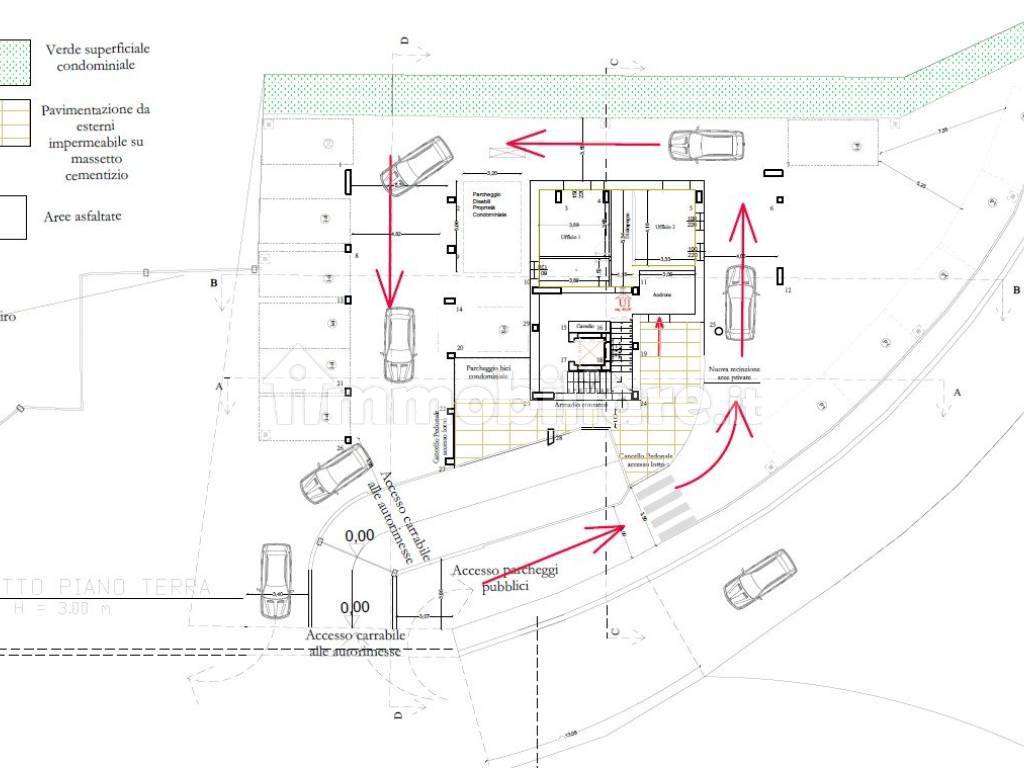
ZOLA PREDOSA - PAESE: Disponiamo di terreno edificabile di 1065 mq con progetto di costruzione, già approvato, di una palazzina di quattro piani abitativi con n. 8 unità abitative dal primo al terzo piano e una unità ad uso ufficio al piano terra oltre al piano interrato adibito a garage e cantine. La struttura e il progetto sono disponibili subito. Per info e visione incartamenti del progetto e quant'altro chiamare l'Agenzia immobiliare TeleWebCasa di via A. Murri 131/B - Bologna tel. uff. 051 6238216 oppure Mobile 366 9604424.
Se vuoi saperne di più, puoi parlare con Adnan Taki.
Caratteristiche
Contratto
Vendita
Tipologia
Terreno edificabile
Superficie
1.065 m²
Disponibilità
Libero
Qualificazione urbanistica
Unità multiple
Dislivello terreno
Leggero
Altezza massima edificabile
12,9 m
Area edificabile
830 m²
Accesso in strada/servitù di passaggio
In strada asfaltata
Altre caratteristiche
  • Allaccio fogne
  • Illuminazione pubblica
  • Recintato
Informazioni sul prezzo
Prezzo
€ 400.000
Prezzo al m²
376 €/m²
New
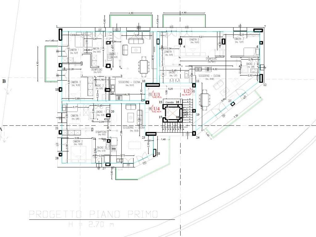
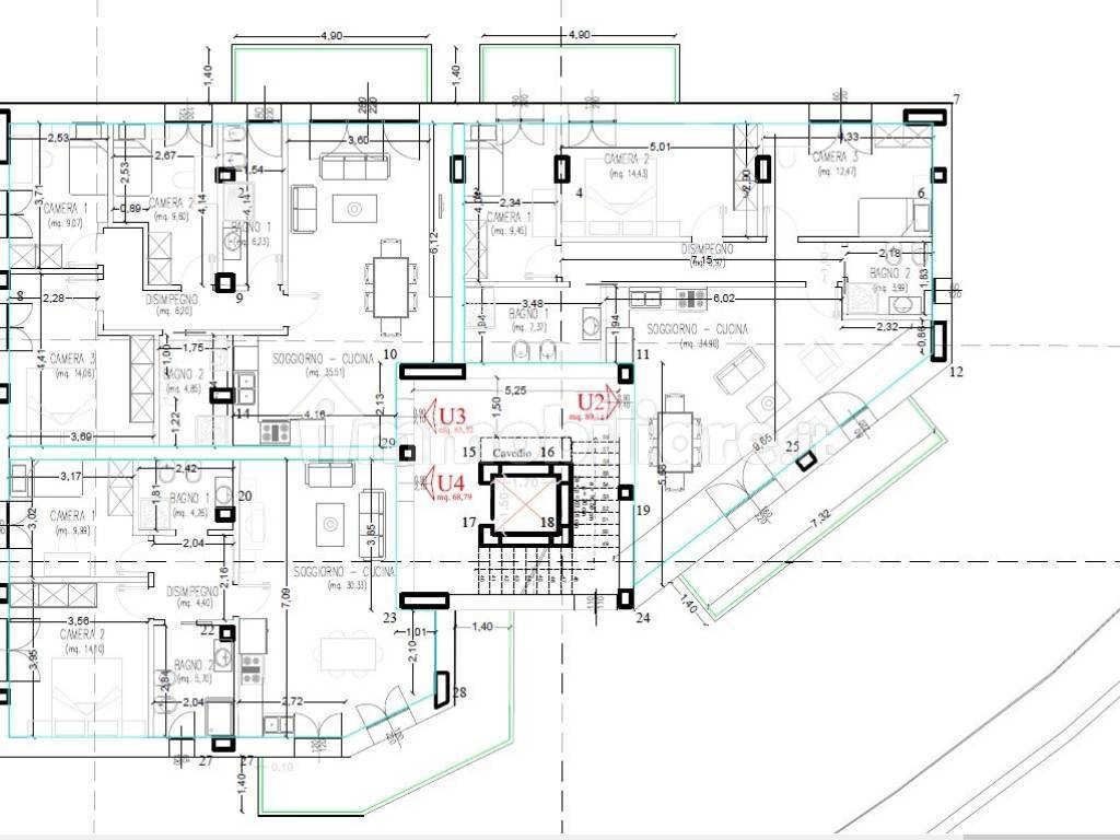
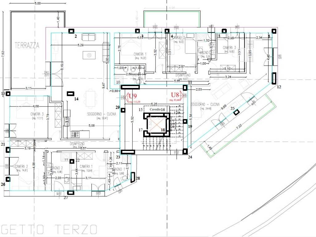
Planimetria
Planimetria 1° e 2° Piano
Planimetria 3° Piano
Planimetria Piano interrato
Planimetria Piano terra
Scopri ogni angolo dell'immobile
+35
Opzioni aggiuntive

Contatta l'inserzionista

Oppure