Terratetto unifamiliare via della Fonte, San Giacomo, Castiglione dei Pepoli

€ 120.000
4
126 m²
2
No
Parzialmente Arredato

Nota

Annuncio aggiornato il 25/02/2025
Descrizione

riferimento: Cà di sandretti

Cà di Sandretti

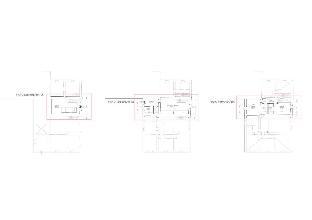
A soli 3 Km dal casello autostradale di Roncobilaccio, in posizione silenziosa e soleggiata porzione terra tetto di vecchio borgo, completamente ristrutturata nel 2008, su due livelli al piano terra ingresso su sala cucina con camino, oltre bagno ed antibagno, al piano primo due camere e bagno, ampia autorimessa, corte comune e piccolo appezzamento di terreno privato.
Prezzo leggermente trattabile
Stefania 3388609763
Caratteristiche
Tipologia
Terratetto unifamiliare | Intera proprietà | Classe immobile signorile
Contratto
Vendita
Piano
Da seminterrato a piano terra, 1
Piani edificio
2
Ascensore
No
Superficie
126 m²
Locali
4
Camere da letto
2
Cucina
Cucina abitabile
Bagni
2
Arredato
Parzialmente Arredato
Balcone
No
Terrazzo
No
Box, posti auto
1 in box privato/box in garage, 2 in parcheggio/garage comune
Riscaldamento
Autonomo, a radiatori, alimentato a gpl
Altre caratteristiche
  • Caminetto
  • Infissi esterni in doppio vetro / legno
  • Impianto tv singolo
Dettaglio superficie

Abitazione

Piano
Piano terra
Superficie
55,0 m²
Coefficiente
100%
Tipo superficie
Principale
Sup. commerciale
55,0 m²

Abitazione

Piano
1
Superficie
55,0 m²
Coefficiente
100%
Tipo superficie
Principale
Sup. commerciale
55,0 m²

Box o garage

Piano
Seminterrato
Superficie
32,0 m²
Coefficiente
50%
Tipo superficie
Principale
Sup. commerciale
16,0 m²
Informazioni sul prezzo
Prezzo
€ 120.000
Prezzo al m²
952 €/m²
New
Dettaglio dei costi
Spese condominio
Nessuna spesa condominiale
Efficienza energetica
  • Anno di costruzione

    2008
  • Stato

    Buono / Abitabile
  • Riscaldamento

    Autonomo, a radiatori, alimentato a gpl
  • Certificazione energetica

    In attesa di certificazione
Planimetria
APPARTAMENTO N.2 - GIUSTI SETTIMO 1
Terreno
Scopri ogni angolo dell'immobile
+24
Mutuo
%
Durata del mutuo

Rata da € 356 al mese

€ 36.000 (30%)

€ 84.000 (70%)

Vuoi sapere che mutuo puoi richiedere?

Opzioni aggiuntive

Contatta l'inserzionista

Oppure