Terreno edificabile in Vendita

Prezzo su richiesta
22.000 m²

Nota

Annuncio aggiornato il 20/05/2025
Descrizione

riferimento: TRB

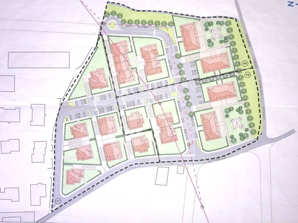
Terreni edificabili in zona residenziale in Favria (To)

I terreni ricadono all’interno di un’ampia e recente lottizzazione sita nell’area di Favria (To). a due minuti dal centro. La zona in cui insistono i lotti è principalmente residenziale e dista cinque minuti in macchina dal centro di Rivarolo C.se (To), venti minuti da Ciriè (To) e trenta minuti da Torino. Ideale per chi vuole risiedere in una zona tranquilla, ben servita e poco distante dai principali centri urbani, ideale per progetti di qualità in ambito di edilizia residenziale green.
Fissa un appuntamento per avere ulteriori informazioni chiamando il numero 0124-25326 senza nessun impegno.
Caratteristiche
Contratto
Vendita
Tipologia
Terreno edificabile
Superficie
22.000 m²
Qualificazione urbanistica
Unità multiple
Altezza massima edificabile
7,5 m
Area edificabile
21.000 m²
Accesso in strada/servitù di passaggio
In strada asfaltata
Informazioni sul prezzo
Prezzo
Prezzo su richiesta
Opzioni aggiuntive

Contatta l'inserzionista