Trilocale via Europa 6, Bariano

€ 250.000
3
128 m²
2
1
No
Terrazzo

Nota

Annuncio aggiornato il 28/10/2025
Descrizione

riferimento: 61023374

Proponiamo in vendita ultimi due appartamenti trilocali di nuova costruzione al primo piano, inseriti in un elegante contesto residenziale composto da sole quattro unità, senza spese condominiali.
Ogni appartamento è disposto su un unico livello e presenta ingresso indipendente, ambienti luminosi e spazi ben organizzati. La zona giorno si sviluppa in un moderno open space, mentre la zona notte comprende una camera matrimoniale, una cameretta e doppi servizi con sanitari sospesi.
Disponibilità attuale:

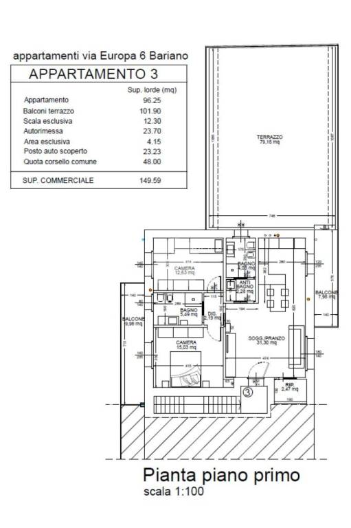
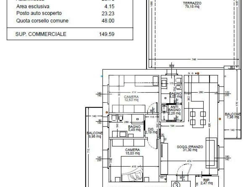
* Appartamento 3 - Piano primo
Superficie abitativa: 96,25 mq, Terrazzo vivibile e balcone: 101,90 mq totali, Box: 23,70 mq, Posto auto scoperto: 23,23 mq
Prezzo: 285.000

* Appartamento 4 - Piano primo
Superficie abitativa: 97,40 mq, Balcone: 19,35 mq, Giardino privato: 45,46 mq, Box: 24,25 mq, Posto auto scoperto: 15,66 mq
Prezzo: 250.000
I prezzi indicati NON sono soggetti ad IVA, ma ad imposta di registro.
Caratteristiche tecniche e impiantistiche:

* Ottime finiture da capitolato
* Impianto di riscaldamento autonomo a pavimento con pompa di calore
* Raffrescamento estivo con split a parete
* Impianto di ventilazione meccanica (VMC)
* Tapparelle elettriche
* Predisposizione per impianto di allarme
* Videocitofono
* Impianto fotovoltaico con 8 moduli monocristallini da 3,48 kWp, inverter
* Basculanti box sezionali motorizzatiClasse energetica A. Consegna prevista per la Primavera 2025.
Gli appartamenti sono situati a pochi passi dal centro di Bariano, in una zona ben collegata al casello autostradale Brebemi e alla stazione ferroviaria. Queste soluzioni rappresentano la scelta ideale per giovani famiglie che desiderano un immobile di nuova costruzione con spazi pensati per essere vissuti, in una zona comoda e ben servita.
Se vuoi saperne di più, puoi parlare con Maurizio Vecchiarelli ..

Di solito risponde entro 1 giorno

Caratteristiche
Tipologia
Appartamento | Intera proprietà | Classe immobile media
Contratto
Vendita
Piano
1 piano
Piani edificio
2
Ascensore
No
Superficie
128 m²
Locali
3
Camere da letto
2
Cucina
Cucina abitabile
Bagni
2
Arredato
No
Balcone
No
Terrazzo
Box, posti auto
1 in box privato/box in garage
Riscaldamento
Autonomo, a pavimento, alimentato a metano
Climatizzazione
Autonomo
Altre caratteristiche
  • VideoCitofono
Informazioni sul prezzo
Prezzo
€ 250.000
Prezzo al m²
1.953 €/m²
New
Dettaglio dei costi
Spese condominio
Nessuna spesa condominiale
Efficienza energetica

Consumo di energia

20.46 kWh/m² annoA4

Planimetria
plan app n. 3 - PIANO PRIMO
PIANO PRIMO - app n. 4
Scopri ogni angolo dell'immobile
+16
Opzioni aggiuntive

Contatta l'inserzionista

Oppure