Trilocale via Antonio Locatelli 57, Bariano

€ 270.000
3
149 m²
2
No
Balcone
Terrazzo

Nota

Annuncio aggiornato il 16/10/2025
Descrizione

riferimento: 61023392

A pochi passi dal centro di Bariano, proponiamo in vendita appartamenti trilocali recentemente ristrutturati. Disponibili 4 unità già ultimati e pronti per essere abitati.
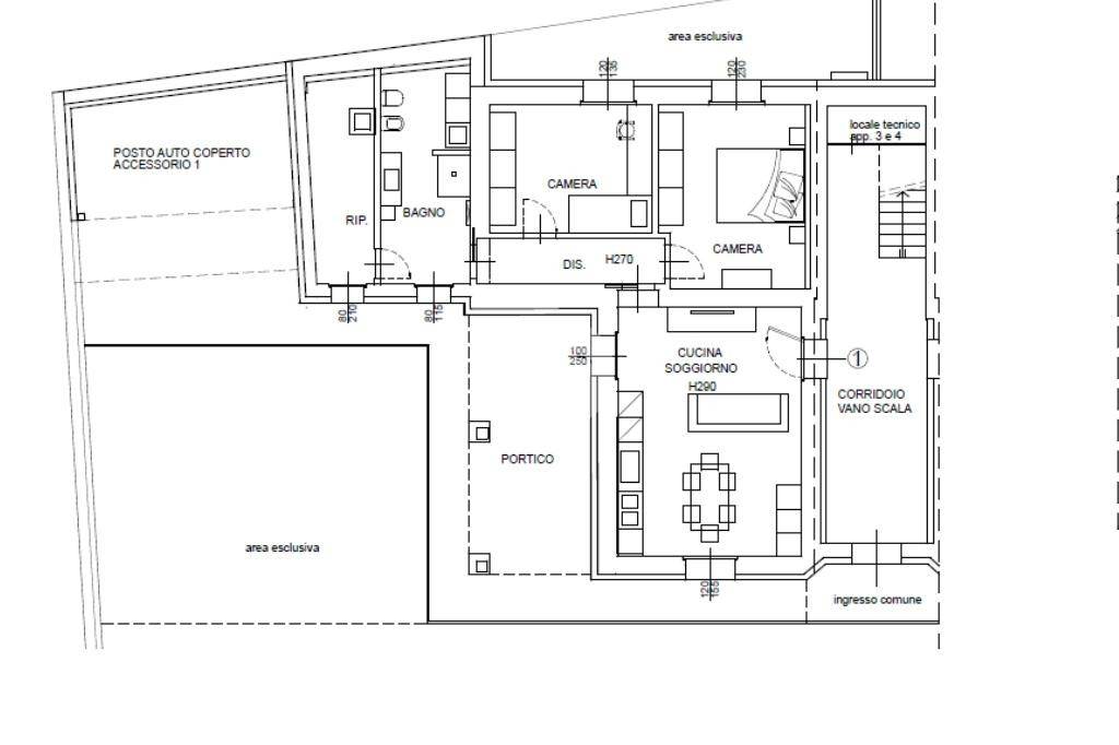
Ogni appartamento è disposto su un unico livello e comprende una zona giorno open space, disimpegno, zona notte con: una camera matrimoniale, una cameretta, bagno con sanitari sospesi e lavanderia. Gli appartamenti al piano terra hanno un'area esterna di proprietà esclusiva, mentre quelli al primo piano dispongono di una terrazza o balcone.
Dettagli appartamenti:

* Appartamento 1 (Piano terra): Superficie di 108,40 mq, area esterna esclusiva di 83,85 mq, portico di 18,50 mq, posto auto coperto di 25,90 mq e sottotetto di 45,90 mq. Prezzo: € 290.000 + IVA
* Appartamento 2 (Piano terra): Superficie di 119,40 mq, area esterna esclusiva di 107 mq, posto auto coperto di 34,10 mq e sottotetto di 45,90 mq. Prezzo: € 305.000 (Imposta di registro invece di IVA)
* Appartamento 3 (Piano primo): Superficie di 100,90 mq, terrazza di 49,35 mq, posto auto coperto di 27,30 mq, posto auto scoperto di 20,40 mq e sottotetto di 47 mq. Prezzo: € 285.000 + IVA
* Appartamento 4 (Piano primo): Superficie di 100,60 mq, balconi di 18,27 mq, posto auto coperto di 27,30 mq, posto auto scoperto di 20,40 mq e sottotetto di 46,10 mq. Prezzo: € 270.000 + IVACaratteristiche tecniche e impiantistiche:

* Ottime finiture da capitolato
* Impianto di riscaldamento autonomo a pavimento con pompa di calore
* Raffrescamento estivo con split a parete
* Impianto di ventilazione meccanica (VMC)
* Tapparelle elettriche
* Predisposizione per impianto di allarme
* Videocitofono
* Impianto fotovoltaico con 8 moduli monocristallini da 3,48 kWp, inverter
* Basculanti box sezionali motorizzati
* Classe energetica AQueste soluzioni sono ideali per chi cerca un appartamento completamente ristrutturato, pronto per essere abitato senza necessità di lavori. Il paese è ben servito grazie alla vicinanza al casello autostradale Brebemi e alla stazione ferroviaria.
Se vuoi saperne di più, puoi parlare con Maurizio Vecchiarelli ..

Di solito risponde entro 1 giorno

Caratteristiche
Tipologia
Appartamento | Intera proprietà | Classe immobile media
Contratto
Vendita
Piani edificio
2
Ascensore
No
Superficie
149 m²
Locali
3
Camere da letto
2
Cucina
Cucina angolo cottura
Bagni
2
Arredato
No
Balcone
Terrazzo
Box, posti auto
1 in box privato/box in garage, 1 in parcheggio/garage comune
Riscaldamento
Autonomo, a pavimento, alimentato a metano
Climatizzazione
Autonomo
Altre caratteristiche
  • VideoCitofono
Informazioni sul prezzo
Prezzo
€ 270.000
Prezzo al m²
1.812 €/m²
New
Dettaglio dei costi
Spese condominio
Nessuna spesa condominiale
Efficienza energetica

Consumo di energia

20.46 kWh/m² annoA4

Planimetria
Piano terra (appartamento n.1)
Piano terra (appartamento n.2)
Piano primo (appartamento n.1)
Piano primo (appartamento n.4)
planimetria
Scopri ogni angolo dell'immobile
+17
Opzioni aggiuntive

Contatta l'inserzionista

Oppure