Locale commerciale in Affitto

€ 2.000/mese
3
345 m²
1
T

Nota

Zenso

Prestiti online e veloci

Confronta le offerte in 1 minuto

Annuncio aggiornato il 01/03/2025
Descrizione

riferimento: CBI104-622-275

Locale commerciale in affitto a Galatina

Locale Commerciale in Locazione a Galatina - Via Matteotti

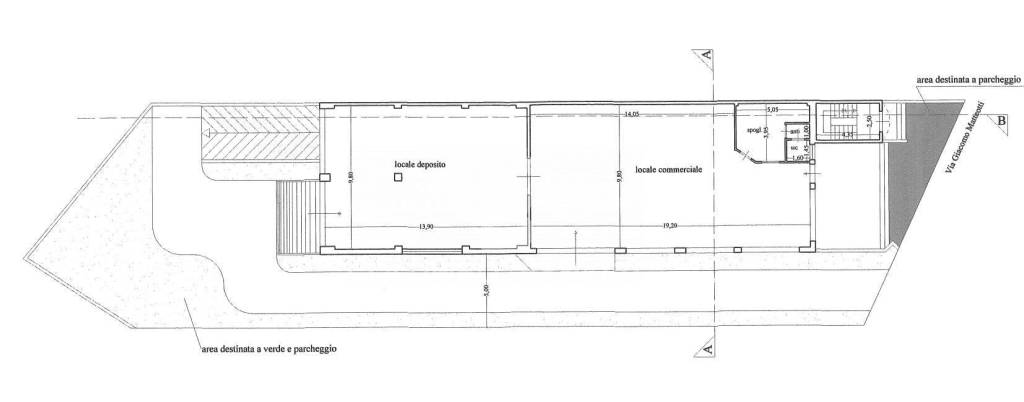
Proponiamo in locazione un ampio locale commerciale situato in Via Matteotti a Galatina, ideale per diverse attività. La proprietà offre un'area esclusiva di 1.200 mq di piazzale completamente recintato, con doppio ingresso e accesso comodo.
L'immobile è composto da:
- 200 mq di locale commerciale, completamente vetrato e molto luminoso, con ufficio, antibagno e bagno.
- 140 mq di locale deposito con accesso indipendente sul retro, perfetto per le esigenze di stoccaggio.
Caratteristiche aggiuntive:
- Cancello elettrico
- Sistema di allarme
- Aria condizionata
- Pronto all'uso, ideale per avviare qualsiasi tipo di attività commerciale.

Questa soluzione rappresenta un'ottima opportunità per chi cerca un'area spaziosa e ben posizionata. Contattaci per maggiori dettagli e per organizzare una visita!
Se vuoi saperne di più, puoi parlare con Manuela Maiorano.
Caratteristiche
Contratto
Affitto
Tipologia
Locale commerciale
Superficie
345 m² | commerciale 1.545 m²
Locali
3 locali, 1 bagno, doppio ingresso
Piano
Piano terra, con accesso disabili
Piani edificio
1
Vetrine
7 vetrine su strada
Ultima attività svolta
Concessionaria
Box, posti auto
10 in parcheggio/garage comune
Disponibilità
Libero
Altre caratteristiche
  • Cablato
  • Impianto di allarme
  • Luci d'emergenza
  • Porta tagliafuoco
  • Uscita emergenza
  • Ventilazione meccanica
Dettaglio superficie

Negozio - Locale commerciale

Piano
Piano terra
Superficie
345,0 m²
Coefficiente
100%
Tipo superficie
Principale
Sup. commerciale
345,0 m²

Piazzale

Piano
Piano terra
Superficie
1.200,0 m²
Coefficiente
100%
Tipo superficie
Accessoria
Sup. commerciale
1.200,0 m²
Informazioni sul prezzo
Prezzo
€ 2.000/mese
Prezzo al m²
1 €/m²
New
Dettaglio dei costi
Spese condominio
Nessuna spesa condominiale
Cauzione
€ 4.000
Efficienza energetica

Consumo di energia

≥ 175 kWh/m² annoF

Planimetria
Foto 13
Scopri ogni angolo dell'immobile
+10
Opzioni aggiuntive

Contatta l'inserzionista

Oppure