Terreno edificabile in Vendita

€ 33.000
330 m²

Nota

Annuncio aggiornato il 03/03/2025
Descrizione

riferimento: EK-118870853

Suolo edificatorio

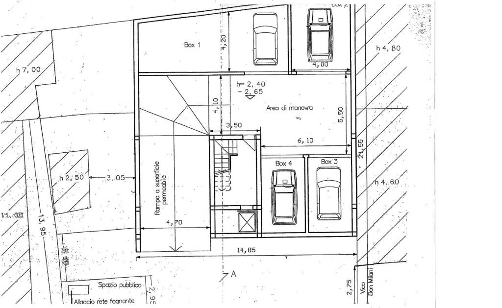
Nella zona alta di Parabita, nei pressi della parrocchia S. Antonio, vendesi un suolo edificatorio di mq. 330 con un progetto approvato per la realizzazione di un locale commerciale al piano terra, 2 appartamenti al primo piano, un appartamento al piano secondo e box al piano seminterrato.
Se vuoi saperne di più, puoi parlare con Fabio Dimo.
Caratteristiche
Contratto
Vendita | Affitto con riscatto
Tipologia
Terreno edificabile
Superficie
330 m²
Disponibilità
Libero
Qualificazione urbanistica
Unità multiple
Dislivello terreno
Leggero
Altezza massima edificabile
9 m
Area edificabile
300 m²
Accesso in strada/servitù di passaggio
In strada asfaltata
Altre caratteristiche
  • Illuminazione pubblica
Informazioni sul prezzo
Prezzo
€ 33.000
Prezzo al m²
100 €/m²
New
Planimetria
Piano terra
Seminterrato
primo piano
secondo piano
Scopri ogni angolo dell'immobile
+7
Opzioni aggiuntive

Contatta l'inserzionista

Oppure