map icon

Capannone in Vendita

Roncade
€ 190.000
452 m²
2

Nota

Annuncio aggiornato il 04/03/2025
Descrizione

riferimento: V24_84

CAPANNONE GIA' AFFITTATO

IN COMUNE- Ampio capannone industriale con attività già avviata in affitto con contratto scadente nel 2029. Questo immobile si sviluppa su una superficie totale di 330 mq al piano terra, arricchito da un soppalco di 100 mq, offrendo così un'ottima soluzione per ottimizzare gli spazi. La struttura è composta da tre vani funzionali e dispone di due bagni ed un antibagno, rendendo l'ambiente adatto anche per un utilizzo intensivo.
L'ingresso indipendente garantisce un facile accesso e una buona visibilità, mentre il terreno di 100 mq al piano terra offre ulteriori opportunità per l'espansione delle attività. Le condizioni generali dell'immobile sono buone, permettendo un immediato utilizzo senza necessità di interventi strutturali significativi.
Inoltre, nello spazio privato sono presenti dieci posti auto con ampia zona di manovra anche per furgoni, che semplificano la logistica e l'accesso ai clienti. Questa soluzione rappresenta un'opportunità interessante per chi cerca un capannone versatile e ben posizionato, in una zona strategica per il proprio business. Non perdere l'occasione di investire in questa proprietà! Contattaci per maggiori informazioni e per organizzare una visita.
L'indirizzo, nel rispetto della privacy del proprietario, è da considerarsi indicativo.
Caratteristiche
Contratto
Vendita
Tipologia
Capannone
Superficie
452 m²
Locali
2 bagni
Piano
Piano terra
Piani edificio
1
Altezza capannone
4,2 m
Dettaglio superficie

Capannone

Piano
Piano terra
Superficie
330,0 m²
Coefficiente
100%
Tipo superficie
Principale
Sup. commerciale
330,0 m²

Altro

Piano
Piano terra
Superficie
100,0 m²
Coefficiente
100%
Tipo superficie
Principale
Sup. commerciale
100,0 m²

Ufficio o Studio

Piano
Piano terra
Superficie
12,0 m²
Coefficiente
100%
Tipo superficie
Principale
Sup. commerciale
12,0 m²

Piazzale

Piano
Piano terra
Superficie
100,0 m²
Coefficiente
10%
Tipo superficie
Principale
Sup. commerciale
10,0 m²
Informazioni sul prezzo
Prezzo
€ 190.000
Prezzo al m²
420 €/m²
New
Efficienza energetica

Consumo di energia

≥ 3,51 kWh/m² annoG

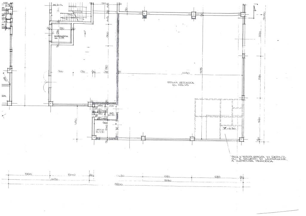
Planimetria
doc04793620250304095554 1
Scopri ogni angolo dell'immobile
+9
Opzioni aggiuntive

Contatta l'inserzionista

Oppure