Quadrilocale via Francesco Cilea 56, Nigozza, Cinisello Balsamo

€ 452.000
4
137 m²
2
T
Cantina

Nota

Annuncio aggiornato il 23/07/2025
Descrizione

riferimento: 246

NUOVA COSTRUZIONE IN CLASSE A4

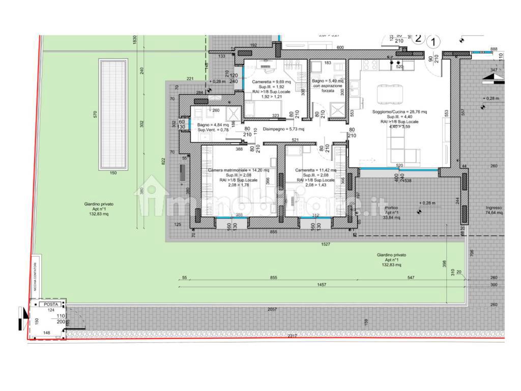
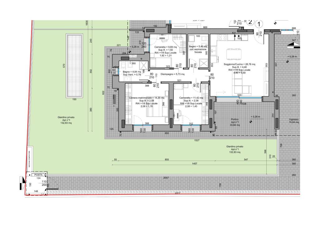
APPARTAMENTO N.1 - 4 LOCALI CON GIARDINO PRIVATO

In raffinato contesto residenziale, adiacente a tutti i principali servizi, è in fase di ultimazione una moderna e gradevole palazzina in mattoni a vista di soli tre piani fuori terra composta da sole 11 unità abitative di varia metratura.
Il progetto prevede l'utilizzo di materiali e impianti altamente performanti per garantire un elevato comfort abitativo e permettere un elevata efficienza energetica (classe A4).
Ogni appartamento sarà dotato di impianto di riscaldamento autonomo con pompa di calore e riscaldamento a pavimento, impianto di ventilazione meccanica con recupero del calore, serramenti doppio vetro con telaio in PVC, impianto fotovoltaico, videocitofono e predisposizione per allarme e per aria condizionata.

L'appartamento situato al piano terra è composto da soggiorno con cucina a vista che permette l'accesso al porticato coperto di 34 mq e all'ampio giardino privato di 133 mq; zona notte composta da camera da letto matrimoniale, due camere singole e doppi servizi. Completa la proprietà la cantina compresa nel prezzo e la possibilità di acquistare a parte box singolo o doppio.

Finiture di elevata qualità con possibilità di scelta e personalizzazione di materiali e colori.
Consegna prevista: estate 2025.

Per qualsiasi informazione: PuntoCasa Villasanta - 039.22.866.20
Se vuoi saperne di più, puoi parlare con Matteo Stucchi.
Caratteristiche
Tipologia
Appartamento | Intera proprietà | Immobile di lusso
Contratto
Vendita
Piano
Piano terra
Piani edificio
2
Ascensore
Superficie
137 m²
Locali
4
Camere da letto
3
Cucina
Cucina a vista
Bagni
2
Arredato
No
Balcone
No
Terrazzo
No
Box, posti auto
1 in box privato/box in garage
Riscaldamento
Autonomo, a pavimento, alimentato a fotovoltaico
Climatizzazione
Predisposizione impianto
Altre caratteristiche
  • Armadio a muro
  • Esposizione doppia
  • Fibra ottica
  • Giardino privato e comune
  • Infissi esterni in doppio vetro / PVC
  • Porta blindata
  • Cancello elettrico
  • Impianto tv centralizzato
Dettaglio superficie

Abitazione

Piano
Piano terra
Superficie
137,0 m²
Coefficiente
100%
Tipo superficie
Principale
Sup. commerciale
137,0 m²
Informazioni sul prezzo
Prezzo
€ 452.000
Prezzo al m²
3.299 €/m²
New
Efficienza energetica

Consumo di energia

≥ 3,51 kWh/m² annoA4

Planimetria
APP.01
APP.01
Scopri ogni angolo dell'immobile
+27
Mutuo
%
Durata del mutuo

Rata da € 1.343 al mese

€ 135.600 (30%)

€ 316.400 (70%)

Vuoi sapere che mutuo puoi richiedere?

Opzioni aggiuntive

Contatta l'inserzionista

Oppure