Terratetto plurifamiliare 330 m², da ristrutturare, Lasino, Madruzzo

€ 40.000
330 m²

Nota

Annuncio aggiornato il 02/12/2025
Descrizione

riferimento: EK-119101065

Casa con due appartamenti

Vendo interessantissima casa di corte tetta tetto.

A piano terra, cortile e numerosi avvolti;

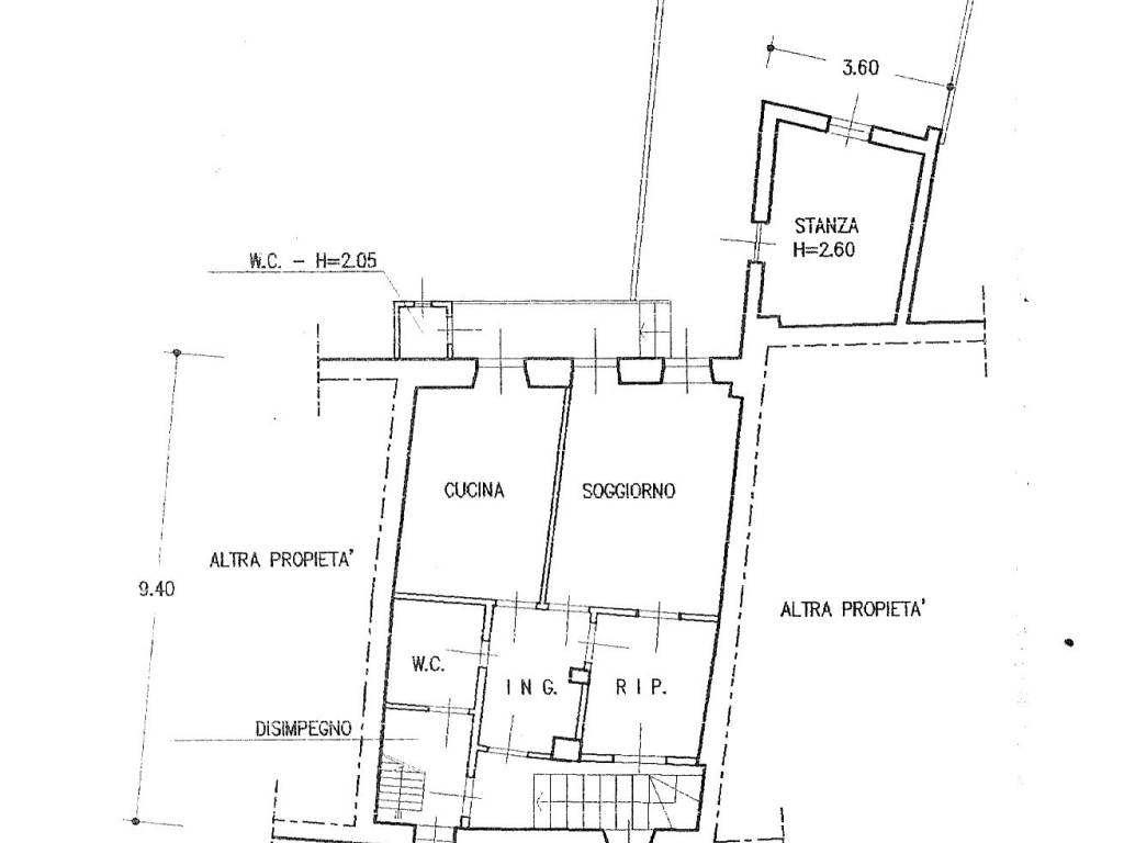
A primo piano, il primo appartamento con balcone;

A piano secondo, il secondo appartamento con balcone e terrazzo;

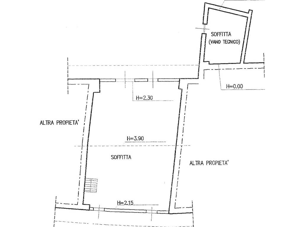
A terzo piano, ampia soffitta.

Immobile da risanare, ben esposto, indipendente.

Ottimo prezzo!

Info al 347 28 56 779
Caratteristiche
Tipologia
Terratetto plurifamiliare | Intera proprietà
Contratto
Vendita
Piano
Piano terra, da 1 a 3
Superficie
330 m²
Dettaglio superficie

Abitazione

Piano
1
Superficie
120,0 m²
Coefficiente
100%
Tipo superficie
Principale
Sup. commerciale
120,0 m²

Abitazione

Piano
2
Superficie
120,0 m²
Coefficiente
100%
Tipo superficie
Principale
Sup. commerciale
120,0 m²

Soffitta

Piano
3
Superficie
80,0 m²
Coefficiente
50%
Tipo superficie
Principale
Sup. commerciale
40,0 m²

Cantina

Piano
Piano terra
Superficie
200,0 m²
Coefficiente
25%
Tipo superficie
Principale
Sup. commerciale
50,0 m²
Informazioni sul prezzo
Prezzo
€ 40.000
Prezzo al m²
121 €/m²
New
Dettaglio dei costi
Spese condominio
Nessuna spesa condominiale
Efficienza energetica
  • Stato

    Da ristrutturare
  • Certificazione energetica

    Non classificabile
Scopri ogni angolo dell'immobile
+5
Opzioni aggiuntive

Contatta l'inserzionista

Oppure