Locale commerciale in Vendita

Prezzo su richiesta
1.425 m²

Nota

Annuncio aggiornato il 29/05/2025
Descrizione

riferimento: 1331457

Struttura alberghiera

Castel San Pietro Terme.
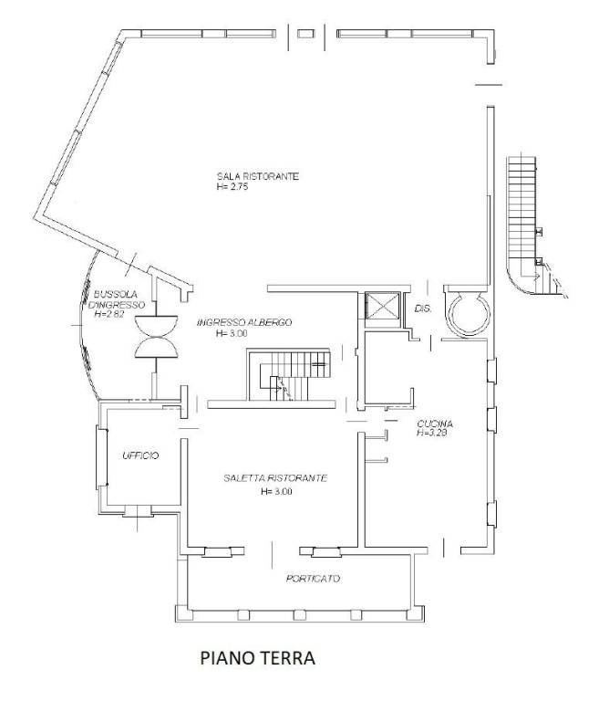
Lungo il Viale delle Terme, in posizione strategica e panoramica, a ridosso del torrente Sillaro, vendesi graziosa struttura alberghiera, edificata su un’area di 4200 mq. oltre ad ampio parcheggio. L’immobile è sviluppato su quattro livelli: al piano seminterrato di circa mq. 445 troviamo la zona servizi: zona laboratorio, servizi igienici e spogliatoi per il personale, locale dispensa e celle frigorifere, entrata fornitori, locale caldaie; al piano terra di circa mq. 400 troviamo la reception, la sala ristorante, saletta polivalente, ufficio, cucina e pizzeria; al piano primo di circa mq. 250 troviamo 11 camere con bagno: 8 matrimoniali e 3 singole; al piano secondo di circa mq. 250 altre 11 camere con bagno: 4 matrimoniali, 2 singole, 5 stanze mansardate per utilizzo gestore; piano copertura di mq. 165 circa con terrazzo ad uso solarium.
Affitto ramo d’azienda con scadenza 30/11/2027. Possibile vendita di quote societarie.
Trattativa riservata
Se vuoi saperne di più, puoi parlare con Elisa Baraldi.
Caratteristiche
Contratto
Vendita
Tipologia
Locale commerciale
Superficie
1.425 m²
Piano
5 piani: da Seminterrato a Piano terra, da 1° a 3°
Piani edificio
4
Altre caratteristiche
  • Aspirazione fumi
  • Cablato
  • Luci d'emergenza
  • Uscita emergenza
  • Canna fumaria
Dettaglio superficie

Negozio - Locale commerciale

Piano
Piano terra
Superficie
400,0 m²
Coefficiente
100%
Tipo superficie
Principale
Sup. commerciale
400,0 m²

Magazzino - Deposito

Piano
Seminterrato
Superficie
445,0 m²
Coefficiente
100%
Tipo superficie
Principale
Sup. commerciale
445,0 m²

Negozio - Locale commerciale

Piano
1
Superficie
250,0 m²
Coefficiente
100%
Tipo superficie
Principale
Sup. commerciale
250,0 m²

Negozio - Locale commerciale

Piano
2
Superficie
250,0 m²
Coefficiente
100%
Tipo superficie
Principale
Sup. commerciale
250,0 m²

Altro

Piano
3
Superficie
265,0 m²
Coefficiente
30%
Tipo superficie
Principale
Sup. commerciale
79,5 m²
Informazioni sul prezzo
Prezzo
Prezzo su richiesta
Efficienza energetica

Consumo di energia

121.56 kWh/m² annoD

Planimetria
Scopri ogni angolo dell'immobile
+12
Opzioni aggiuntive

Contatta l'inserzionista