Villa a schiera via Bosco 42, Aiello del Sabato

€ 350.000
4
300 m²
3+
No
Balcone
Terrazzo

Nota

Annuncio aggiornato il 30/07/2025
Descrizione

riferimento: 61030813

AIELLO DEL SABATO - La Tecnocasa di Serino propone in vendita porzione di villa bifamiliare di nuova costruzione (mai abitata). Collocata in un contesto di macchia mediterranea , questa proprietà sorge a solo 4 km dal centro di Avellino. Facente parte di un complesso residenziale assolutamente esclusivo, immerso nella quiete e nella folta vegetazione locale, la villa è realizzata con mattoni di cotto e tufo a vista secondo i più caratteristici tratti dell’architettura locale. La villa della superficie di 300 mq si circonda di un giardino privato. Sviluppata su più livelli la villa accoglie al piano terra grandi spazi, tra cui un luminoso salone, bagno e una moderna sala da pranzo/cucina con portefinestre che conducono direttamente al giardino. La zona notte ospita 3 camere da letto (di cui una con terrazzo) e un bagno. Al piano inferiore si trova ampio garage, bagno e cantina, con predisposizione per una seconda cucina, ideale da utilizzare come tavernetta. Completa la proprietà un sottotetto completamente rifinito composto da un unico ambiente oltre locale lavanderia. In ogni ambiente, progettato nel minimo dettaglio con grande gusto, le rifiniture di pregio e i materiali di altissimo livello (a titolo di esempio se ne elencano alcuni: riscaldamento a pavimento, pannelli solari per produzione acqua calda, persiane blindate, termostato in ogni ambiente) creano un atmosfera elegante e sofisticata.
Se vuoi saperne di più, puoi parlare con Giampiero Russo ..

Di solito risponde entro 1 giorno

Caratteristiche
Tipologia
Villa a schiera | Intera proprietà | Classe immobile media
Contratto
Vendita
Piano
4 piano
Piani edificio
4
Ascensore
No
Superficie
300 m²
Locali
4
Camere da letto
3
Cucina
Cucina abitabile
Bagni
3+
Arredato
No
Balcone
Terrazzo
Box, posti auto
1 in box privato/box in garage, 1 in parcheggio/garage comune
Riscaldamento
Autonomo, a pavimento, alimentato a gpl
Informazioni sul prezzo
Prezzo
€ 350.000
Prezzo al m²
1.167 €/m²
New
Dettaglio dei costi
Spese condominio
Nessuna spesa condominiale
Efficienza energetica

Consumo di energia

G

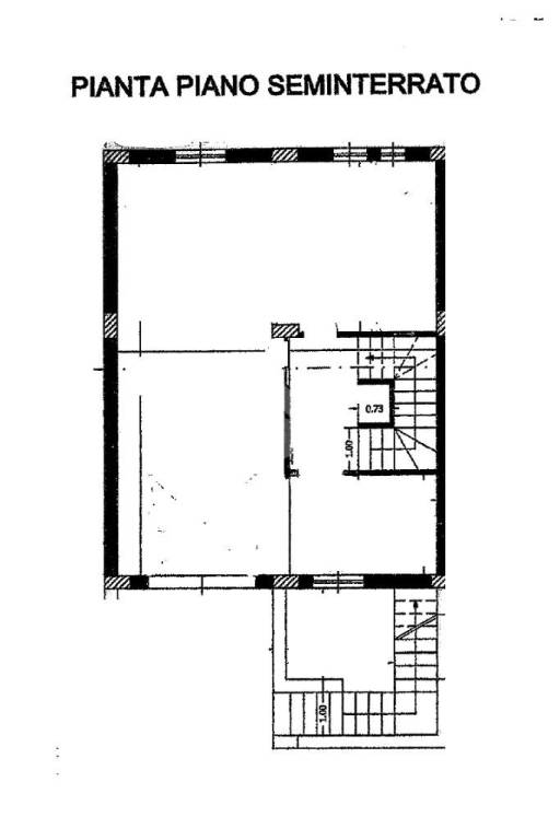
Planimetria
Piano seminterrato
Piano Terra
Primo Piano
Sottotetto
Planimetria
Scopri ogni angolo dell'immobile
+20
Opzioni aggiuntive

Contatta l'inserzionista

Oppure