Capannone in Vendita

€ 218.000
245 m²
1

Nota

Annuncio aggiornato il 29/10/2025
Descrizione

riferimento: 61033625

In contesto di corte storica a pochi passi dalla piazza di Robecco, dove un tempo si trovava il Circolino che è stato sede di attività culturali e ricreative, corsi di ballo, di degustazione, di storia, proponiamo, in VENDITA, capannone - deposito di ca 245 mq con servizio.

Al primo piano, il salone, veniva utilizzato dai soci e dalla cittadinanza per assemblee e incontri, venivano allestiti molte pranzi di nozze e feste.

Entrando nel cortile, uno spazio di proprietà, utile per parcheggiare due auto, precede l'ingresso nel primo salone caratterizzato da ampie metrature e una pavimentazione in cotto.
Da qui si accede al secondo salone, molto luminoso grazie alla presenza di numerose finestre e dotato di un soppalco in legno.

Una parte della proprietà è stata adibita a depandance, caratterizzata da travi a vista, composta da soggiorno con cucina, camera da letto matrimoniale e bagno cieco con doccia.

Al centro degli immobili sopra descritti si trova un piccolo e grazioso giardinetto dal quale si scende al locale cantinato dove sono conservati tutt'oggi gli attrezzi della tradizione lavorativa del Circolino.

La proprietà risulta accatastata come deposito/magazzino e non come abitazione residenziale.
Si presta ad essere interessante per esposizioni, enoteca con locale per degustazioni, ristorante o per organizzare feste e ricevimenti.

Libera in tempi brevi.
Se vuoi saperne di più, puoi parlare con Giuseppe Cantoni ..

Di solito risponde entro 1 giorno

Caratteristiche
Contratto
Vendita
Tipologia
Capannone
Superficie
245 m²
Locali
1 bagno
Box, posti auto
1 in box privato/box in garage, 1 in parcheggio/garage comune
Disponibilità
Libero
Informazioni sul prezzo
Prezzo
€ 218.000
Prezzo al m²
890 €/m²
New
Dettaglio dei costi
Spese condominio
Nessuna spesa condominiale
Efficienza energetica
  • Anno di costruzione

    1900
  • Stato

    Buono / Abitabile
  • Riscaldamento

    Autonomo, a radiatori, alimentato a metano
  • Climatizzatore

    Autonomo
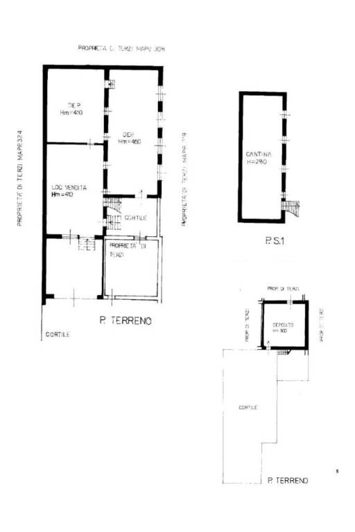
Planimetria
Planimetria
Planimetria2
Virtual tour
Scopri ogni angolo dell'immobile
+26
Opzioni aggiuntive

Contatta l'inserzionista

Oppure