map icon

Bilocale nuovo, quinto piano, Cisanello - San Biagio, Pisa

PisaCisanello - San Biagio
€ 260.000
2
58 m²
1
5
No
Terrazzo

Nota

Annuncio aggiornato il 08/04/2025
Descrizione

riferimento: AIA46

Nuovi appartamenti in zona Pisanova, tipologia bilocale .

Situati in una delle aree più dinamiche, a breve distanza dai lungarni e dal centro città, raggiungibili anche tramite una comoda pista ciclabile, offriamo soluzioni abitative di recente costruzione.

Collocati nell'elegante complesso residenziale "Le Torri di Parco Europa", gli appartamenti, tutti in classe energetica A4+, sono completamente automatizzati con riscaldamento a pavimento e raffreddamento centralizzato, e vantano finiture di ultima generazione. Caratterizzati da ampie vetrate che assicurano eccellente luminosità naturale e spaziose terrazze, godono di una vista mozzafiato sulla città, dalla celebre Piazza dei Miracoli ai Monti Pisani.

Le Torri, dal design contemporaneo, progettate dagli architetti Jean-Pierre Buffi e Beniamino Cristofani, sono costruite con una struttura in acciaio zincato e facciate in vetro Sunguard Super Silver, un materiale ad alta efficienza energetica.

Le unità abitative, tutte dotate di terrazza, variano dai 60 ai 200 mq, sono immerse in uno specchio d'acqua e si affacciano sul nuovo parco cittadino, il più esteso della città, completo di piste ciclabili e aree attrezzate.
Caratteristiche: aria condizionata, ascensore, fibra ottica, finiture di pregio, impianto fotovoltaico, sistemi di domotica, allarme, pannelli solari termici, terrazza, videocitofono.

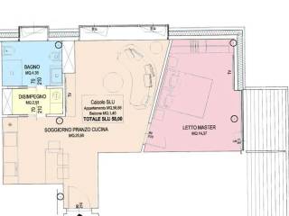
il bilocale di circa 57 mq si compone di Ingresso nella zona giorno con cucina openspace, camera da letto, bagno, ripostiglio e balcone.
Caratteristiche: accessibilità per disabili, ascensore, cancello elettrico, fibra ottica, finiture di lusso, fotovoltaico, sistemi di domotica, allarme, solare termico, terrazza, videocitofono, giardino condiviso, aria condizionata, porta blindata.

Ideali sia come residenza che come investimento, il complesso immobiliare Le Torri gode di una posizione strategica, vicina al centro e a tutti i servizi: Centro Commerciale (200 m), Ospedale di Cisanello e la futura sede "Stella Maris" (500 m), il polo universitario e il CNR (2 km), il centro storico (2 km), la superstrada (3 km).

Consegna 2025.

Richiesta Euro 260.000,00
Possibilità di acquistare a parte, cantina, garage e posto auto.
Classe energetica A/3
Caratteristiche
Tipologia
Appartamento | Intera proprietà | Immobile di lusso
Contratto
Vendita
Piano
5 piano
Piani edificio
13
Ascensore
No
Superficie
58 m²
Locali
2
Camere da letto
1
Bagni
1
Arredato
No
Balcone
No
Terrazzo
Riscaldamento
Centralizzato, a pavimento
Climatizzazione
Freddo
Altre caratteristiche
  • Infissi esterni in doppio vetro / metallo
  • Porta blindata
Informazioni sul prezzo
Prezzo
€ 260.000
Prezzo al m²
4.483 €/m²
New
Dettaglio dei costi
Spese condominio
Nessuna spesa condominiale
Efficienza energetica

Consumo di energia

A3

Scopri ogni angolo dell'immobile
+14
Mutuo
%
Durata del mutuo

Rata da € 772 al mese

€ 78.000 (30%)

€ 182.000 (70%)

Vuoi sapere che mutuo puoi richiedere?

Opzioni aggiuntive

Contatta l'inserzionista

Oppure