Villa unifamiliare via Vannetti,, Agrestone, Agrestino, Querciolaia, Colle di Val d'Elsa

€ 600.000
5+
159 m²
2
Lusso
No
Terrazzo

Nota

Annuncio aggiornato il 24/03/2025
Descrizione

riferimento: 559

CAPOLUOGO - Colle di Val d'Elsa - QUERCIOLAIA
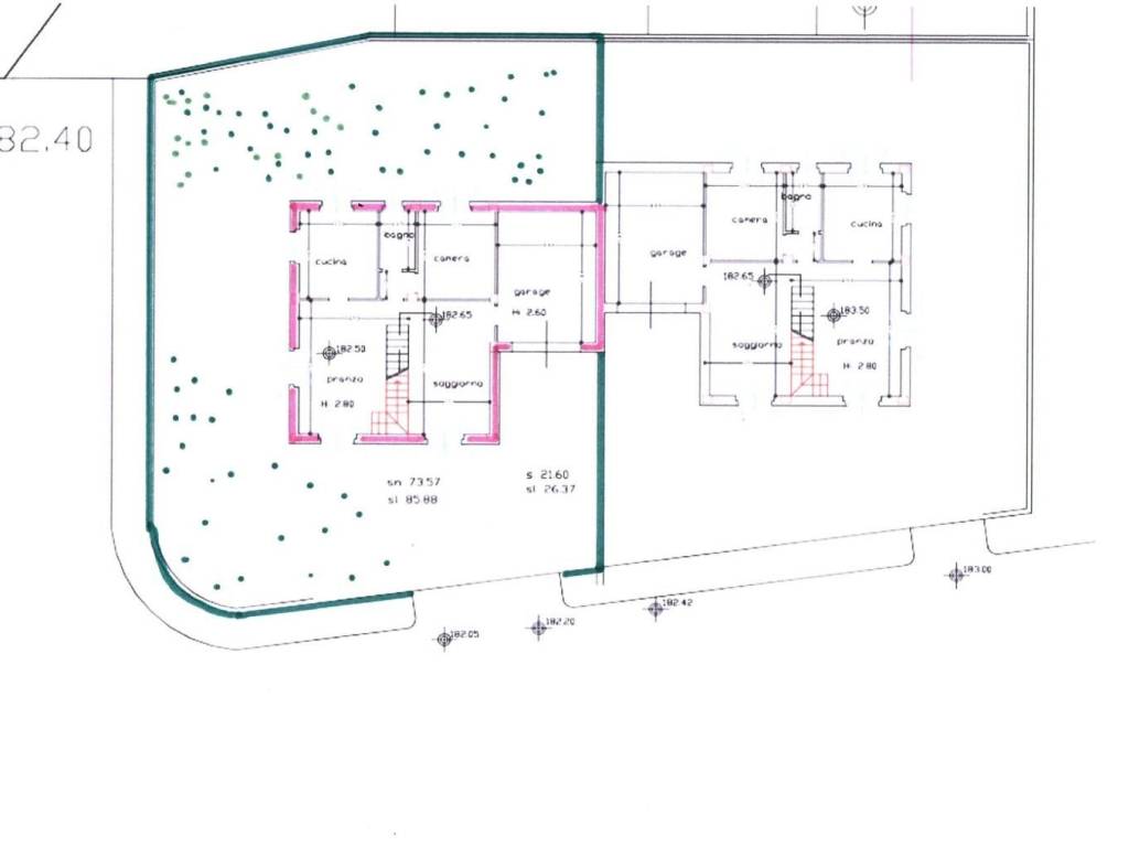
Villa in vendita - 7 vani - 159 mq - con ingresso indipendente - posto al piano Piano terra composto da 4 camere e 2 bagni Classe energetica: A4 - Rif. 559

In collina ma a due passi dal centro e da tutti i principali servizi, villetta indipendente in bifamiliare quasi totalmente su due livell di circa 160 mq. oltre al garage di circa 30 mq. sempre al piano terra, così distribuiti: ingresso, soggiorno, sala da pranzo, cucina abitabile, disimpegno, camera, bagno finestrato e garage al piano terra; due camere matrimoniali, camera doppia, bagno ,ripostiglio e terrazza abitabile al primo piano.il tutto circondato da circa 200 mq. di giardino oltre a due posti auto privati all'interno della proprietà. L'immobile sarà costruito in osservanza delle normative sul risparmio energetico tale da risultare in classe A 4 con cappotto termico, riscaldamento a pavimento, pompa di calore, fotovoltaico e solare, ventilazione meccanica controllata VMC, tetto in legno etc.
Caratteristiche
Tipologia
Villa unifamiliare | Intera proprietà | Classe immobile media
Contratto
Vendita
Piano
Piano terra
Piani edificio
2
Ascensore
No
Superficie
159 m²
Locali
5+
Camere da letto
4
Cucina
Cucina abitabile
Bagni
2
Arredato
No
Balcone
No
Terrazzo
Riscaldamento
Autonomo, a pavimento, alimentazione elettrica
Climatizzazione
Autonomo
Altre caratteristiche
  • Porta blindata
  • VideoCitofono
Dettaglio superficie

Abitazione

Piano
Piano terra
Superficie
159,0 m²
Coefficiente
100%
Tipo superficie
Principale
Sup. commerciale
159,0 m²
Informazioni sul prezzo
Prezzo
€ 600.000
Prezzo al m²
3.774 €/m²
New
Efficienza energetica
  • Prestazione energetica del fabbricato

    InvernaleEstivo
  • Anno di costruzione

    2024
  • Stato

    Nuovo / In costruzione
  • Riscaldamento

    Autonomo, a pavimento, alimentazione elettrica
Mutuo
%
Durata del mutuo

Rata da € 1.782 al mese

€ 180.000 (30%)

€ 420.000 (70%)

Vuoi sapere che mutuo puoi richiedere?

Opzioni aggiuntive

Contatta l'inserzionista

Oppure