Appartamento piazza Cristo re, Corso Langhe, Moretta, Corso Cortemilia, Alba

€ 395.000
5+
160 m²
2
4
Balcone
Terrazzo

Nota

Annuncio aggiornato il 26/06/2025
Descrizione

riferimento: 674

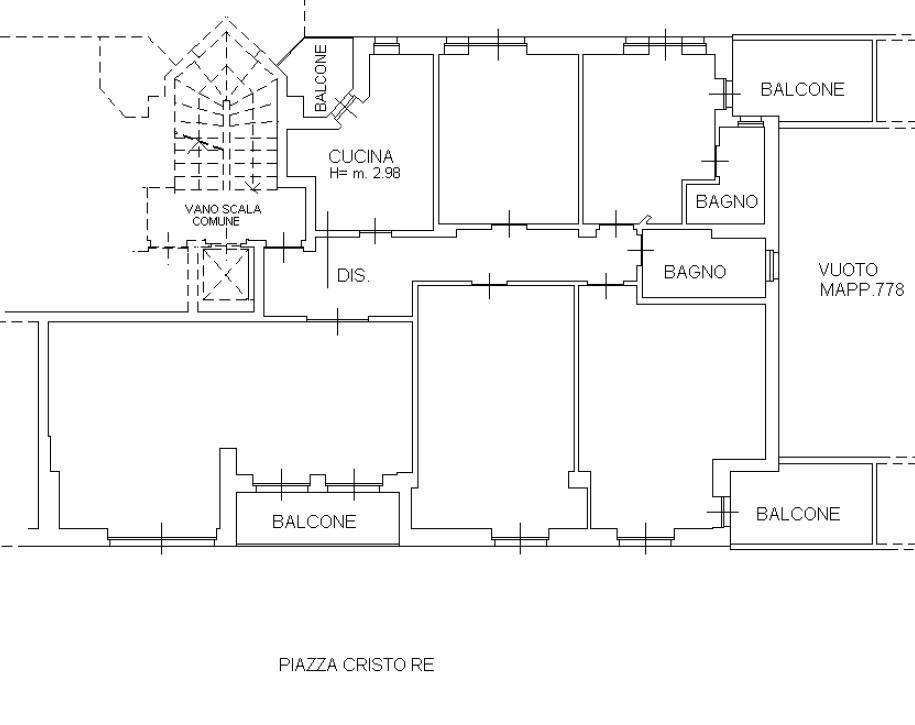
Grande appartamento piazza Cristo Re

Con affaccio sulla piazza di Cristo Re vendesi appartamento di grande metratura sito al quarto piano di cinque in palazzina prestigiosa con affaccio aperto e luminosissimo. Appartamento di 160 mq ca catastali composto da: entrata in ingresso, salone doppio, cucina abitabile, disimpegno , quattro camere da letto, doppi servizi, quattro balconi, grande garage al piano interrato con relativa cantina. Appartamento unico nel suo genere per posizione, dimensione e luce. Il riscaldamento è centralizzato con termo valvole. Già deliberati lavori di facciata dell'intero stabile. Dispone di ascensore. L'appartamento si presenta in buono stato abitativo e può essere anche abitabile da subito. Possibilità eventuale di dividerlo in due unità. Richiesta 395.000 trattabili.
Da vedere .
Se vuoi saperne di più, puoi parlare con Daniele Delfinetti.
Caratteristiche
Tipologia
Appartamento | Intera proprietà | Classe immobile signorile
Contratto
Vendita
Piano
4
Piani edificio
5
Ascensore
Superficie
160 m²
Locali
5+
Camere da letto
6
Cucina
Cucina abitabile
Bagni
2
Arredato
No
Balcone
Terrazzo
Box, posti auto
1 in box privato/box in garage
Riscaldamento
Centralizzato, a radiatori, alimentato a teleriscaldamento
Climatizzazione
Autonomo, freddo/caldo
Altre caratteristiche
  • Porta blindata
Dettaglio superficie

Abitazione

Piano
4
Superficie
160,0 m²
Coefficiente
100%
Tipo superficie
Principale
Sup. commerciale
160,0 m²
Informazioni sul prezzo
Prezzo
€ 395.000
Prezzo al m²
2.469 €/m²
New
Dettaglio dei costi
Spese condominio
€ 250/mese
Spese riscaldamento
€ 1.800/anno
Efficienza energetica

Consumo di energia

108.64 kWh/m² annoE

Planimetria
Scopri ogni angolo dell'immobile
+29
Mutuo
%
Durata del mutuo

Rata da € 1.173 al mese

€ 118.500 (30%)

€ 276.500 (70%)

Vuoi sapere che mutuo puoi richiedere?

Opzioni aggiuntive

Contatta l'inserzionista

Oppure