Villa a schiera via Volterrana, Sant'Andrea, Le Grazie, Colle di Val d'Elsa

€ 300.000
4
115 m²
2
No
Terrazzo

Nota

Annuncio aggiornato il 24/03/2025
Descrizione

riferimento: 663

Campiglia - Colle di Val d'Elsa
Villetta bifamiliare in vendita - 4 vani - 115 mq - con ingresso indipendente - posto al piano Piano terra
composto da 2 camere e 2 bagni
Classe energetica: A3 - Rif. 663 Campiglia - Colle di Val d'Elsa Villetta bifamiliare in vendita - 4 vani - 120 mq - con ingresso indipendente - posto al piano Piano terra composto da 2 camere e 2 bagni
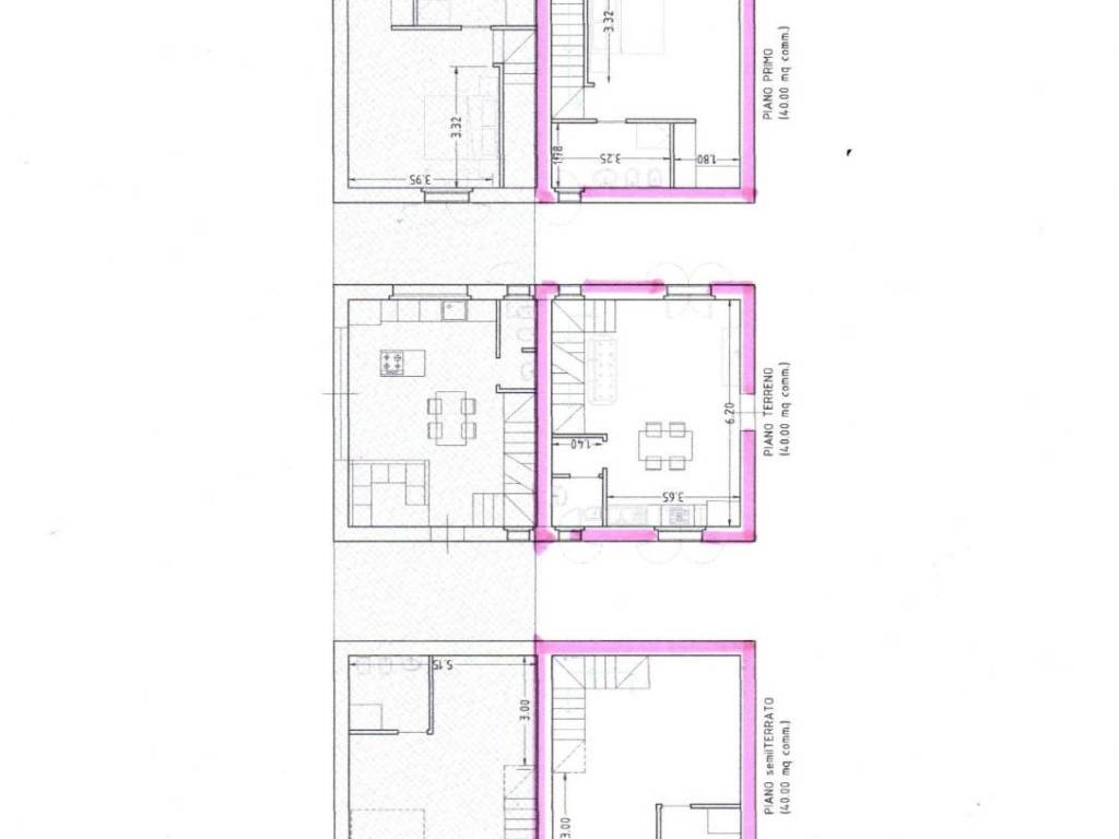
Campiglia, di prossima edificazione in villetta bifamiliare, terratetto indipendente per complessivi 120 mq. composto da: piano terra con ampio e luminoso soggiorno affacciato sul giardino privato, cucina abitabile, bagno finestrato; piano primo con camera matrimoniale, cameretta, bagno finestrato; piano seminterrato con rustico, lavanderia e bagno. Il tutto con giardino privato che si sviluppa su tre lati dell'edificio con 2 posti auto all'interno. L'immobile in conformità con le nuove norme sul risparmio energetico avrà il riscaldamento a pavimento, pannelli fotovoltaici, cappotto termico e quanto necessario al raggiungimento della classe energetica migliore.
Caratteristiche
Tipologia
Villa a schiera | Intera proprietà | Classe immobile media
Contratto
Vendita
Piano
Piano terra
Piani edificio
3
Ascensore
No
Superficie
115 m²
Locali
4
Camere da letto
2
Cucina
Cucina abitabile
Bagni
2
Arredato
No
Balcone
No
Terrazzo
Box, posti auto
1 in parcheggio/garage comune
Riscaldamento
Autonomo, a pavimento
Climatizzazione
Predisposizione impianto
Altre caratteristiche
  • Porta blindata
  • Taverna
  • VideoCitofono
Dettaglio superficie

Abitazione

Piano
Piano terra
Superficie
115,0 m²
Coefficiente
100%
Tipo superficie
Principale
Sup. commerciale
115,0 m²
Informazioni sul prezzo
Prezzo
€ 300.000
Prezzo al m²
2.609 €/m²
New
Efficienza energetica
  • Prestazione energetica del fabbricato

    InvernaleEstivo
  • Anno di costruzione

    2024
  • Stato

    Nuovo / In costruzione
  • Riscaldamento

    Autonomo, a pavimento
Scopri ogni angolo dell'immobile
+6
Mutuo
%
Durata del mutuo

Rata da € 891 al mese

€ 90.000 (30%)

€ 210.000 (70%)

Vuoi sapere che mutuo puoi richiedere?

Opzioni aggiuntive

Contatta l'inserzionista

Oppure