Terreno edificabile in Vendita

€ 370.000
4.590 m²

Nota

Annuncio aggiornato il 16/07/2025
Descrizione

riferimento: TMP 11 VENDITA DIRETTA

TERRENO EDIFICABILE COMMERCIALE - VENDITA DIRETTA

Lotto di terreno EDIFICABILE a destinazione urbanistica (D1) INDUSTRIALE - COMMERCIALE - DIREZIONALE di Mq. 4.590,00.
Potenzialità edificatoria pari al 60% della superficie fondiaria con una superficie coperta di c.a. Mq. 2.700,00 e un altezza massima di Ml. 10,00
Possibilità di costruzione su più piani con uno sviluppo massimo indicativo di mq. 5.400,00 di superficie calpestabile di fabbricato.
Accesso diretto da Via Industrie , a 180,00 mt dall'imbocco alla Strada Statale Triestina.
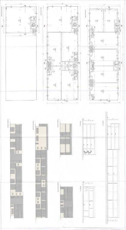
Progetto studio di fattibilità già realizzato.

E' possibile accorpare al terreno l'acquisto di un edificio a destinazione residenziale /direzionale, da ristrutturare , su due piani di circa 340,00 Mq con terreno di pertinenza di mq. 740,00 edificabile.
Caratteristiche
Contratto
Vendita
Tipologia
Terreno edificabile
Superficie
4.590 m²
Disponibilità
Libero
Qualificazione urbanistica
Servizi
Dislivello terreno
Leggero
Altezza massima edificabile
10 m
Area edificabile
4.590 m²
Accesso in strada/servitù di passaggio
In strada asfaltata
Altre caratteristiche
  • Allaccio acqua
  • Allaccio elettricità
  • Allaccio fogne
  • Allaccio gas
  • Illuminazione pubblica
  • Recintato
Informazioni sul prezzo
Prezzo
€ 370.000
Prezzo al m²
81 €/m²
New
Planimetria
Estratto mappa 1
IPOTESI PROGETTUALE DI MASSIMA (1)_c
Scopri ogni angolo dell'immobile
+16
Opzioni aggiuntive

Contatta l'inserzionista

Oppure