Terreno edificabile in Vendita

€ 105.000
830 m²

Nota

Annuncio aggiornato il 01/07/2025
Descrizione

riferimento: TER005

CERCHI UN TERRENO PRONTO PER 3 VILLE O PICCOLA RESIDENZA?
Proponiamo in vendita, in una zona circondata da sole unità singole, terreno con progetto già impostato:
Si sviluppa con una superficie edificabile di 900m, ideale per 3 unità indipendenti in serie o un piccolo fabbricato con appartamenti in villa.
Il progetto è stato già confrontato con gli enti necessari, manca solo depositarlo per partire con la realizzazione.
Presenti gli allacci fognatura e predisposizione allacci utenze.
Possibilità di raccogliere prenotazioni su carta dai possibili acquirenti.
Disponibili a dimostrare qualsiasi documento.
Se vuoi saperne di più, puoi parlare con Matteo Caposiena.
Caratteristiche
Contratto
Vendita
Tipologia
Terreno edificabile
Superficie
830 m²
Disponibilità
Libero
Qualificazione urbanistica
Unità multiple
Dislivello terreno
Leggero
Altezza massima edificabile
9 m
Area edificabile
900 m²
Accesso in strada/servitù di passaggio
In strada asfaltata
Altre caratteristiche
  • Allaccio acqua
  • Allaccio elettricità
  • Allaccio fogne
  • Allaccio gas
  • Illuminazione pubblica
  • Recintato
Informazioni sul prezzo
Prezzo
€ 105.000
Prezzo al m²
127 €/m²
New
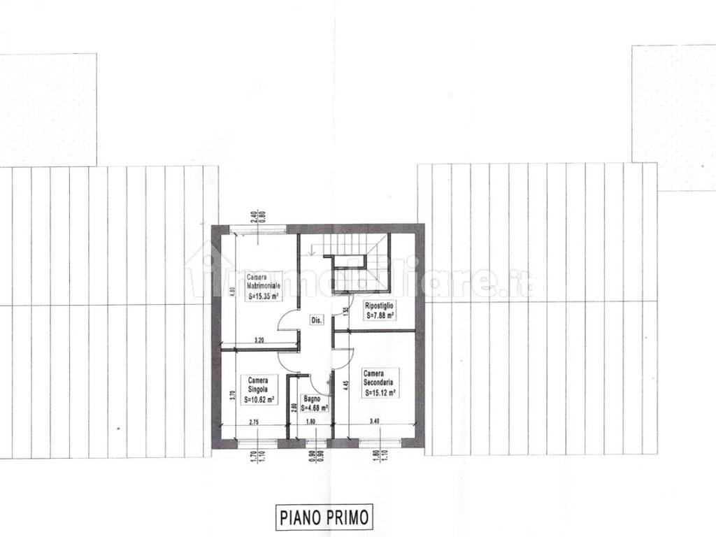
Planimetria
Screenshot 2025-03-29 091029
Screenshot 2025-03-29 091050
Virtual tour
Scopri ogni angolo dell'immobile
+10
Opzioni aggiuntive

Contatta l'inserzionista

Oppure