Terreno edificabile in Vendita

€ 125.000
820 m²

Nota

Annuncio aggiornato il 01/04/2025
Descrizione

riferimento: 28

CALUSCO D'ADDA TERRENO EDIFICABILE ZONA CAPORA € 125.000

Al confinante con il parco Adda, in zona residenziale, proponiamo in vendita lotto di terreno edificabile con un volume di circa 1.200 mc. Completamente delimitato da muri perimetrali e rete metallica. Lotto di 820 mq totale. Ideale per realizzazione villetta singola, bifamiliare o 4 appartamenti in Villa € 125.000,00
VISITA IL NOSTRO SITO: Per qualsiasi informazione e visite potete contattarci in ufficio 035/794834 oppure al numero di cellulare 3484860256 oppure all'indirizzo mail: oppure inviandoci una richiesta specifica. Le presenti informazioni non costituiscono elemento contrattuale.
Se vuoi saperne di più, puoi parlare con Isabella Gherardi.
Caratteristiche
Contratto
Vendita
Tipologia
Terreno edificabile
Superficie
820 m²
Disponibilità
Libero
Dislivello terreno
Leggero
Altezza massima edificabile
10 m
Area edificabile
1.200 m²
Accesso in strada/servitù di passaggio
In strada asfaltata
Altre caratteristiche
  • Allaccio acqua
  • Allaccio elettricità
  • Allaccio fogne
  • Allaccio gas
  • Illuminazione pubblica
  • Recintato
Informazioni sul prezzo
Prezzo
€ 125.000
Prezzo al m²
152 €/m²
New
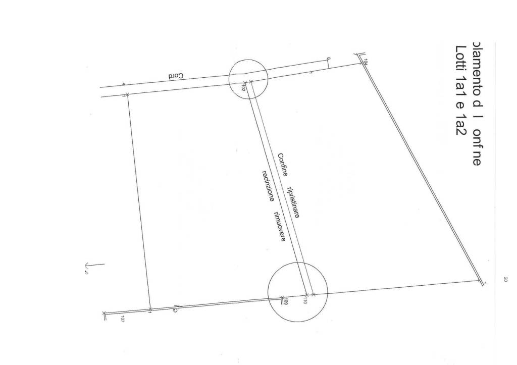
Planimetria
20250401141353.pdf
Scopri ogni angolo dell'immobile
+5
Opzioni aggiuntive

Contatta l'inserzionista

Oppure