Terratetto plurifamiliare via Carlo Emanuele I 22, Bruzolo

€ 98.000
5+
178 m²
2
No
Balcone
Terrazzo
Cantina

Nota

Annuncio aggiornato il 09/07/2025
Descrizione

riferimento: EK-119607389

Casa indipendente con due alloggi

L'immobile è indipendente su quattro lati con giardino privato di circa 200 metri ed è inserito in un contesto di corte.
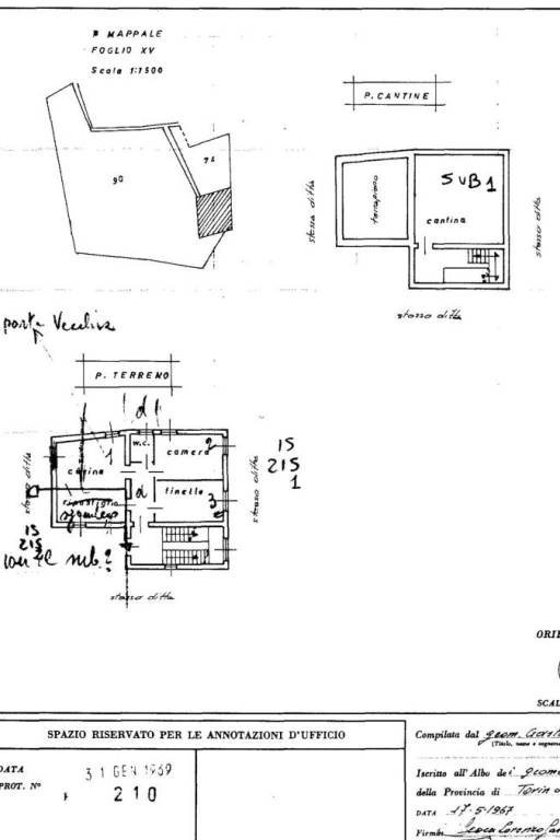
Al piano terra troviamo il primo appartamento di cucina, due camere da letto e bagno.
Al piano primo il secondo alloggio di tinello cucinotta, due camere, bagno e terrazzino. La cantina è al piano interrato.
Il box auto al piano terra ha un locale al piano primo accessibile con scala esterna.
Il riscaldamento è autonomo a metano e il locale caldaia è posizionato al piano terra.
Se vuoi saperne di più, puoi parlare con Lorenzo Russo.
Caratteristiche
Tipologia
Terratetto plurifamiliare | Intera proprietà | Classe immobile media
Contratto
Vendita
Piano
Interrato (-1), piano terra, 1
Piani edificio
2
Ascensore
No
Superficie
178 m²
Locali
5+
Camere da letto
4
Cucina
Cucina abitabile
Bagni
2
Arredato
No
Balcone
Terrazzo
Box, posti auto
1 in box privato/box in garage, 1 in parcheggio/garage comune
Riscaldamento
Autonomo, a radiatori, alimentato a metano
Altre caratteristiche
  • Armadio a muro
  • Esposizione doppia
  • Infissi esterni in vetro / legno
  • Porta blindata
  • Impianto tv singolo
Dettaglio superficie

Abitazione

Piano
Piano terra
Superficie
66,0 m²
Coefficiente
100%
Tipo superficie
Principale
Sup. commerciale
66,0 m²

Abitazione

Piano
1
Superficie
66,0 m²
Coefficiente
100%
Tipo superficie
Principale
Sup. commerciale
66,0 m²

Box o garage

Piano
Piano terra
Superficie
28,0 m²
Coefficiente
50%
Tipo superficie
Principale
Sup. commerciale
14,0 m²

Soffitta

Piano
1
Superficie
28,0 m²
Coefficiente
50%
Tipo superficie
Principale
Sup. commerciale
14,0 m²

Cantina

Piano
Interrato (-1)
Superficie
30,0 m²
Coefficiente
25%
Tipo superficie
Principale
Sup. commerciale
7,5 m²

Giardino

Piano
Piano terra
Superficie
200,0 m²
Coefficiente
5%
Tipo superficie
Principale
Sup. commerciale
10,0 m²
Informazioni sul prezzo
Prezzo
€ 98.000
Prezzo al m²
551 €/m²
New
Efficienza energetica

Consumo di energia

201.96 kWh/m² annoF

Planimetria
PLN_220765422_1 1
PLN_220765422_2 1
Scopri ogni angolo dell'immobile
+34
Mutuo
%
Durata del mutuo

Rata da € 291 al mese

€ 29.400 (30%)

€ 68.600 (70%)

Vuoi sapere che mutuo puoi richiedere?

Opzioni aggiuntive

Contatta l'inserzionista

Oppure