Bilocale via Modena 156, Vergato

€ 135.000
2
65 m²
1
1
Balcone

Nota

Annuncio aggiornato il 30/04/2025
Descrizione

riferimento: EK-119638400

Bilocale di nuova costruzione con balcone

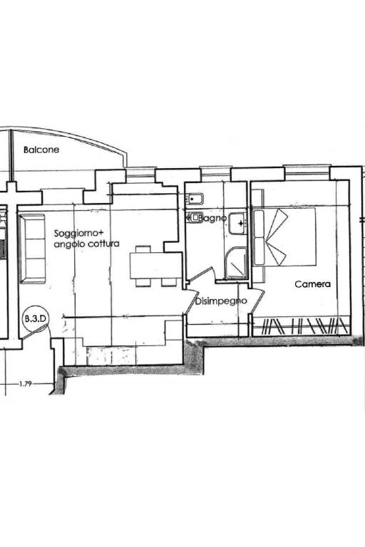
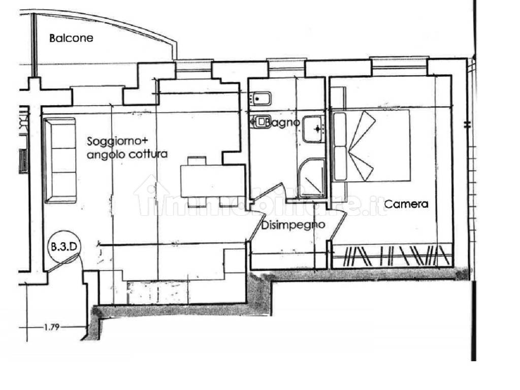
Si propone in vendita bilocale composto da ingresso-soggiorno-angolo cottura, camera, bagno e balcone.
*Immagini a scopo esemplificativo

Residenza Belvedere in corso di ultimazione, situato in via Modena 156, in posizione dominante, esposto al sole e comodo ai servizi, al centro storico, alla stazione FS, all’ospedale, alla farmacia e alle scuole.
Diverse tipologie di appartamenti luminosi e panoramici, ingressi autonomi e accessi indipendenti anche per diversamente abili, giardini privati e garage.
Classe energetica in fase di realizzazione (presunta A).

. Struttura antisismica, mattoni a faccia-vista con interposto isolante termico. Tetto in legno a vista, isolamento termico, camera di ventilazione, impermeabilizzato, manto di copertura in lega di alluminio a doppia graffatura.
. Riscaldamento: autonomo a pavimento, regolazione temperatura in ogni ambiente.
. Infissi in PVC – vetrocamera, cassonetto a scomparsa con alto grado di isolamento termico e acustico, e tenuta al vento. Tapparelle in alluminio coibentate e motorizzate.
. Predisposizioni impianti di climatizzazione, filtrazione e sanificazione aria, VMC, predisposizione di pompa di calore e acqua sanitaria.
. Agevolazioni fiscali, tasse fisse e iva 4% per prima casa.
. Lavoriamo per migliorare la qualità e il benessere della vita, case sicure, calde, silenziose e a basso consumo energetico.
. Diversifica il tuo patrimonio: investi sul mattone. Un buon patrimonio garantisce tranquillità.
Se vuoi saperne di più, puoi parlare con Pietro Righi.
Caratteristiche
Tipologia
Appartamento | Intera proprietà
Contratto
Vendita
Piano
1
Piani edificio
3
Ascensore
Superficie
65 m²
Locali
2
Camere da letto
1
Cucina
Cucina angolo cottura
Bagni
1
Balcone
Riscaldamento
Autonomo, a pavimento, alimentato a metano
Climatizzazione
Predisposizione impianto
Altre caratteristiche
  • Fibra ottica
  • Infissi esterni in doppio vetro / PVC
  • Porta blindata
  • Cancello elettrico
  • VideoCitofono
Dettaglio superficie

Abitazione

Piano
1
Superficie
65,0 m²
Coefficiente
100%
Tipo superficie
Principale
Sup. commerciale
65,0 m²
Informazioni sul prezzo
Prezzo
€ 135.000
Prezzo al m²
2.077 €/m²
New
Efficienza energetica
  • Anno di costruzione

    2023
  • Stato

    Nuovo / In costruzione
  • Riscaldamento

    Autonomo, a pavimento, alimentato a metano
  • Climatizzatore

    Predisposizione impianto
Planimetria
B3D
Scopri ogni angolo dell'immobile
+12
Mutuo
%
Durata del mutuo

Rata da € 401 al mese

€ 40.500 (30%)

€ 94.500 (70%)

Vuoi sapere che mutuo puoi richiedere?

Opzioni aggiuntive

Contatta l'inserzionista

Oppure