Locale commerciale in Vendita

€ 299.000
5+
250 m²
3
T

Nota

Annuncio aggiornato il 18/04/2025
Descrizione

riferimento: 012346_25_C112IC

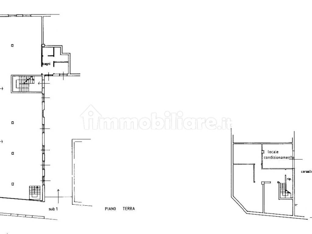
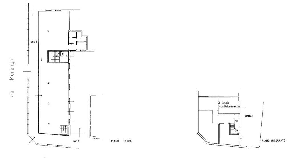
Telgate, in via Morenghi vendiamo locale commerciale di grandi dimensioni al piano terreno e interrato. La maggior parte dell'immobile si sviluppa al piano terra in un'unica grande stanza con molte vetrine e nessuna parete portante. Allo stesso piano si trovano tre bagni, un disimpegno e le scale di collegamento interno al piano interrato composto da quattro ampi locali magazzino e un locale tecnico.
l'immobile ha una buona visibilità e luminosità garantita dalle numerose vetrine, dispone di vari accessi e potrebbe essere utilizzato per diversi tipi di attività.
Codice gestionale: 012346_25_C112IC
Caratteristiche
Contratto
Vendita
Tipologia
Locale commerciale
Superficie
250 m²
Locali
5+ locali, 3 bagni - uno o più adatto a persone disabili, doppio ingresso
Piano
Piano terra, con accesso disabili
Piani edificio
3
Altezza soffitti
3,1 m
Vetrine
11 vetrine su strada
Disponibilità
Libero
Altre caratteristiche
  • Aspirazione fumi
  • Cablato
  • Impianto di allarme
  • Luci d'emergenza
  • Porta tagliafuoco
  • Posizione ad angolo
  • Rilevatori antincendio
  • Uscita emergenza
Dettaglio superficie

Negozio - Locale commerciale

Piano
Piano terra
Superficie
250,0 m²
Coefficiente
100%
Tipo superficie
Principale
Sup. commerciale
250,0 m²
Informazioni sul prezzo
Prezzo
€ 299.000
Prezzo al m²
1.196 €/m²
New
Efficienza energetica

Consumo di energia

≥ 175 kWh/m² annoE

Planimetria
7
Scopri ogni angolo dell'immobile
+11
Opzioni aggiuntive

Contatta l'inserzionista