Trilocale via Giordano Bruno, Montelupo Fiorentino

€ 259.000
3
80 m²
2
R
No

Nota

Annuncio aggiornato il 07/04/2025
Descrizione

riferimento: 3V456

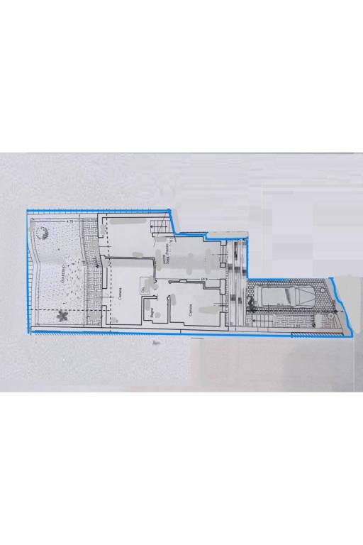
INGRESSO SINGOLO con GIARDINO + TAVERNA

Montelupo Fiorentino FRAZIONE, vicina a tutti i servizi, vendesi appartamento al piano TERRA rialzato di 3 ampi vani, OLTRE TAVERNA per complessivi 80 mq ca.
L’immobile, di recente costruzione, si trova in piccola palazzina bifamiliare, con INGRESSO SINGOLO da vialetto privato e due RESEDI esclusivi, uno sul fronte della casa e l’altro sul tergo.
Composto da:
ingresso in soggiorno /zona pranzo con cucina defilata, con affaccio su resede, disimpegno notte, bagno, 2 camere.
Collegata direttamente all’abitazione, tramite scala interna, la TAVERNETTA finestrata adibita a terza camera, con secondo bagno.
Accessoriato di un POSTO AUTO.
No Amministratore. APE “D”.

rif. 3V456
Se vuoi saperne di più, puoi parlare con Fabio Cioni.
Caratteristiche
Tipologia
Appartamento | Intera proprietà | Classe immobile media
Contratto
Vendita
Piano
Piano rialzato
Piani edificio
1
Ascensore
No
Superficie
80 m²
Locali
3
Camere da letto
2
Cucina
Cucina cucinotto
Bagni
2
Arredato
No
Balcone
No
Terrazzo
No
Box, posti auto
1 in parcheggio/garage comune
Riscaldamento
Autonomo, a radiatori, alimentato a metano
Climatizzazione
Autonomo, freddo/caldo
Altre caratteristiche
  • Esposizione doppia
  • Infissi esterni in doppio vetro / legno
  • Porta blindata
  • Taverna
  • Impianto tv singolo
Dettaglio superficie

Abitazione

Piano
Piano rialzato
Superficie
80,0 m²
Coefficiente
100%
Tipo superficie
Principale
Sup. commerciale
80,0 m²
Informazioni sul prezzo
Prezzo
€ 259.000
Prezzo al m²
3.238 €/m²
New
Dettaglio dei costi
Spese condominio
Nessuna spesa condominiale
Spese riscaldamento
€ 1/anno
Efficienza energetica

Consumo di energia

≥ 175 kWh/m² annoD

Planimetria
PIANTINA (1)
PIANTINA (2)
Scopri ogni angolo dell'immobile
+31
Mutuo
%
Durata del mutuo

Rata da € 769 al mese

€ 77.700 (30%)

€ 181.300 (70%)

Vuoi sapere che mutuo puoi richiedere?

Opzioni aggiuntive

Contatta l'inserzionista

Oppure