Bilocale da ristrutturare, primo piano, Centro, Minerbio

€ 119.000
2
89 m²
1
No

Nota

Annuncio aggiornato il 13/04/2025
Descrizione

riferimento: 474

Appartamento in centro paese

Minerbio (BO) - Appartamento in zona centrale

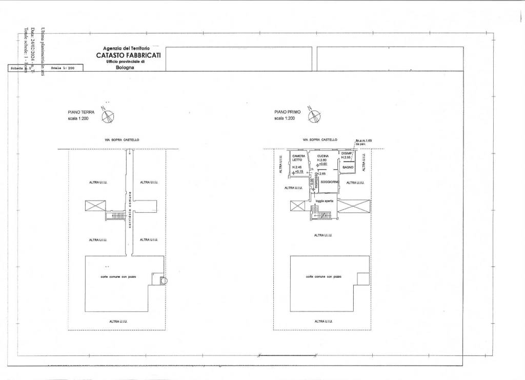
L'immobile è al primo piano e così composto: Ingresso, soggiorno, cucina, disimpegno, bagno,camera.

Garage al piano terra di 37mq (Cat Catastale C1 - negozio, bottega)

- No spese condiminiali
- Bagno rifatto nel 2000
- Caldaia 2021
- condizione generale: Da ristrutturare
Impianti:
- Gas: certificato
- Acqua risc: certificato
- Elettrico: in corso
- Abitalibità: in corso
Se vuoi saperne di più, puoi parlare con Roberto Mei.
Caratteristiche
Tipologia
Appartamento | Intera proprietà | Classe immobile economica
Contratto
Vendita
Piano
Piano terra, 1
Piani edificio
3
Ascensore
No
Superficie
89 m²
Locali
2
Camere da letto
1
Cucina
Cucina abitabile
Bagni
1
Arredato
No
Balcone
No
Terrazzo
No
Riscaldamento
Autonomo, a radiatori, alimentato a gas
Altre caratteristiche
  • Esposizione esterna
  • Infissi esterni in doppio vetro / legno
Dettaglio superficie

Abitazione

Piano
1
Superficie
70,0 m²
Coefficiente
100%
Tipo superficie
Principale
Sup. commerciale
70,0 m²

Box o garage

Piano
Piano terra
Superficie
37,0 m²
Coefficiente
50%
Tipo superficie
Principale
Sup. commerciale
18,5 m²
Informazioni sul prezzo
Prezzo
€ 119.000
Prezzo al m²
1.337 €/m²
New
Dettaglio dei costi
Spese condominio
Nessuna spesa condominiale
Efficienza energetica

Consumo di energia

152.66 kWh/m² annoF

Planimetria
plan_474 1
Scopri ogni angolo dell'immobile
+7
Mutuo
%
Durata del mutuo

Rata da € 353 al mese

€ 35.700 (30%)

€ 83.300 (70%)

Vuoi sapere che mutuo puoi richiedere?

Opzioni aggiuntive

Contatta l'inserzionista

Oppure