Casale via Francesco Crispi, Gattatico

€ 130.000
5+
400 m²
1
No

Nota

Annuncio aggiornato il 19/04/2025
Descrizione

riferimento: 380313

Proprietà Rustica in Vendita – Nocetolo di Gattatico (RE)

RIF. 380313 - In una posizione strategica e tranquilla, proponiamo in vendita rustico da ristrutturare, situato a Nocetolo di Gattatico. La struttura si presenta in discrete condizioni e offre un grande potenziale per chi desidera realizzare un’abitazione di charme, una struttura ricettiva o spazi multifunzionali.

Ottima esposizione e accessibilità
Ideale per residenza, attività agricole, agriturismo o investimento immobiliare
Possibilità di acquisto in blocco con capannoni adiacenti, perfetti per chi cerca ampi spazi anche per uso produttivo o magazzino

L’immobile si presta a molteplici utilizzi, grazie alla sua metratura generosa e alla posizione interessante, ben collegata ai principali centri della zona.

Occasione unica per chi cerca un progetto da personalizzare immerso nella quiete della campagna emiliana, ma con tutti i servizi a portata di mano. sfbc
Caratteristiche
Tipologia
Casale | Intera proprietà
Contratto
Vendita
Piano
Piano terra
Piani edificio
3
Ascensore
No
Superficie
400 m²
Locali
5+
Camere da letto
3
Cucina
Cucina abitabile
Bagni
1
Balcone
No
Terrazzo
No
Dettaglio superficie

Abitazione

Piano
Piano terra
Superficie
400,0 m²
Coefficiente
100%
Tipo superficie
Principale
Sup. commerciale
400,0 m²
Informazioni sul prezzo
Prezzo
€ 130.000
Prezzo al m²
325 €/m²
New
Efficienza energetica

Consumo di energia

G

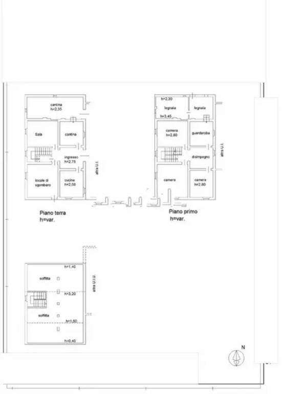
Planimetria
Scopri ogni angolo dell'immobile
+3
Mutuo
%
Durata del mutuo

Rata da € 386 al mese

€ 39.000 (30%)

€ 91.000 (70%)

Vuoi sapere che mutuo puoi richiedere?

Opzioni aggiuntive

Contatta l'inserzionista

Oppure