Villa bifamiliare via Assietta 21b, Sant'Antonino di Susa

€ 350.000
5
108 m²
3
Lusso
No
Balcone
Terrazzo
Cantina

Nota

Annuncio aggiornato il 27/05/2025
Descrizione

riferimento: EK-120060000

Ville di nuova costruzione in Classe A4 – vendita diretta

Scopri il piacere di abitare in una villa moderna ed ecologica, costruita secondo i più alti standard di efficienza energetica. In zona residenziale tranquilla a Sant’Antonino di Susa, Iamonte Srl propone direttamente, due villette indipendenti in Classe Energetica A4 – NZEB (edifici a energia quasi zero).
Ogni unità è sviluppata su due livelli:

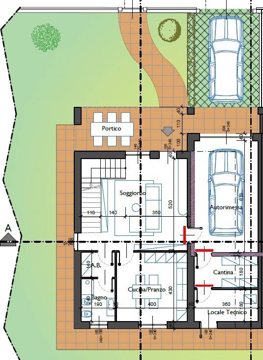
Piano terra: ampio soggiorno, cucina abitabile, bagno, locale tecnico, cantina, portico coperto e giardino privato su tre lati.

Primo piano: tre camere da letto, doppi servizi, cabina armadio e un grande terrazzo coperto.

✨ Punti di forza:
Struttura e tetto in cemento armato antisismici
Materiali ecologici e salubri: muri perimetrali in blocchi Climagold Ytong, ad alta efficienza termica, traspiranti, ignifughi e totalmente riciclabili.
Impianto fotovoltaico da 6 kW
Pompa di calore per riscaldamento a pavimento e acqua calda sanitaria.
Infissi in PVC a triplo vetro e tapparelle elettriche.
Ventilazione meccanica controllata su entrambi i piani.
Predisposizione per impianto d’allarme e domotica.
Spese di riscaldamento, acqua calda e corrente quasi azzerate.
Finiture di pregio personalizzabili presso lo showroom del costruttore: ampia scelta di ceramiche, sanitari, rivestimenti e accessori bagno.
✨Posizione ideale per chi cerca tranquillità senza rinunciare ai servizi.
✨Immobile in classe A4 NZEB, con possibilità di accedere a mutui green a condizioni agevolate offerte dagli istituti bancari

✨Contattaci subito per informazioni dettagliate, capitolato e per prenotare una visita!
Caratteristiche
Tipologia
Villa bifamiliare | Intera proprietà | Classe immobile signorile
Contratto
Vendita
Piano
Piano terra, 1
Piani edificio
2
Ascensore
No
Superficie
108 m² | commerciale 163 m²
Locali
5
Camere da letto
3
Cucina
Cucina abitabile
Bagni
3
Arredato
No
Balcone
Terrazzo
Box, posti auto
1 in box privato/box in garage, 2 in parcheggio/garage comune
Riscaldamento
Autonomo, a pavimento, alimentato a pompa di calore
Altre caratteristiche
  • Armadio a muro
  • Esposizione esterna
  • Fibra ottica
  • Infissi esterni in triplo vetro / PVC
  • Porta blindata
  • Cancello elettrico
  • Impianto tv singolo
  • VideoCitofono
Dettaglio superficie

Abitazione

Piano
Piano terra
Superficie
54,0 m²
Coefficiente
100%
Tipo superficie
Principale
Sup. commerciale
54,0 m²

Box o garage

Piano
Piano terra
Superficie
23,0 m²
Coefficiente
50%
Tipo superficie
Accessoria
Sup. commerciale
11,5 m²

Cantina

Piano
Piano terra
Superficie
7,0 m²
Coefficiente
25%
Tipo superficie
Accessoria
Sup. commerciale
1,8 m²

Posto auto

Piano
Piano terra
Superficie
50,0 m²
Coefficiente
30%
Tipo superficie
Accessoria
Sup. commerciale
15,0 m²

Abitazione

Piano
1
Superficie
54,0 m²
Coefficiente
100%
Tipo superficie
Principale
Sup. commerciale
54,0 m²

Terrazzo

Piano
1
Superficie
22,0 m²
Coefficiente
30%
Tipo superficie
Accessoria
Sup. commerciale
6,6 m²

Terrazzo

Piano
Piano terra
Superficie
17,0 m²
Coefficiente
30%
Tipo superficie
Accessoria
Sup. commerciale
5,1 m²

Giardino

Piano
Piano terra
Superficie
150,0 m²
Coefficiente
10%
Tipo superficie
Accessoria
Sup. commerciale
15,0 m²
Informazioni sul prezzo
Prezzo
€ 350.000
Prezzo al m²
2.147 €/m²
New
Dettaglio dei costi
Spese condominio
Nessuna spesa condominiale
Efficienza energetica

Consumo di energia

≥ 3,51 kWh/m² anno, edificio energia quasi zeroA4

Planimetria
piano terreno
piano primo
PIANO TERRA INGRANDITO
PIANO PRIMO INGRANDITO
Scopri ogni angolo dell'immobile
+12
Mutuo
%
Durata del mutuo

Rata da € 1.040 al mese

€ 105.000 (30%)

€ 245.000 (70%)

Vuoi sapere che mutuo puoi richiedere?

Opzioni aggiuntive

Contatta l'inserzionista

Oppure