Trilocale via Vittorio Veneto, Centro Storico, Chiavari

€ 295.000
3
60 m²
1
4

Nota

Annuncio aggiornato il 16/09/2025
Descrizione

riferimento: Via Vittorio Veneto

Chiavari, via Vittorio Veneto - Trilocale

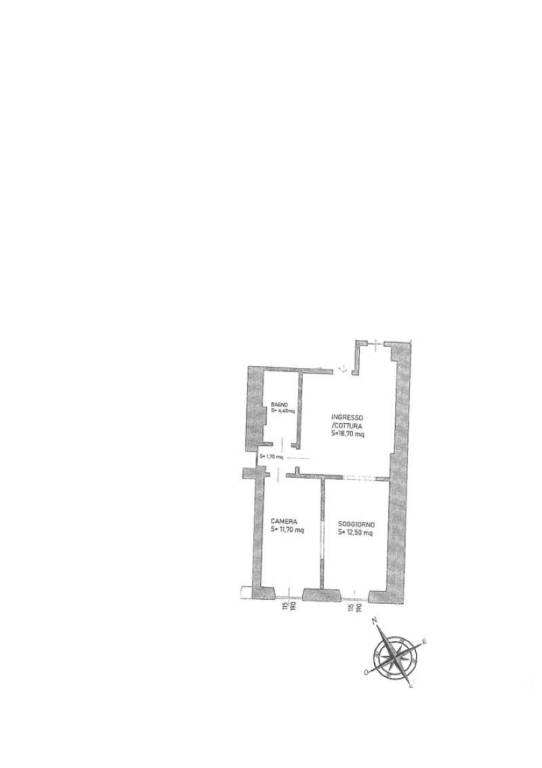
Rif: Via Vittorio Veneto - Chiavari, Via Vittorio Veneto, nel cuore del centro storico cittadino, in posizione strategica e tranquilla, l'immobiliare Progetto31 propone in vendita appartamento ubicato in palazzo totalmente ricostruito negli anni 90. L'immobile, posto ad un piano alto e servito da preziosissimo ascensore, allo stato attuale è così distribuito: Ingresso in zona pranzo con cucina a vista, bagno, due camere da letto. Data la conformazione, l'immobile si presta ad ampie possibilità di redistribuzione interna. Riscaldamento autonomo con esigue spese condominiali. Soluzione ideale sia come prima che seconda casa nonché come investimento.
Se vuoi saperne di più, puoi parlare con Luca Ghiggeri.
Caratteristiche
Tipologia
Appartamento | Intera proprietà | Classe immobile media
Contratto
Vendita
Piano
4
Piani edificio
5
Ascensore
Superficie
60 m²
Locali
3
Camere da letto
2
Cucina
Cucina angolo cottura
Bagni
1
Arredato
No
Balcone
No
Terrazzo
No
Riscaldamento
Autonomo, a radiatori, alimentato a metano
Altre caratteristiche
  • Esposizione doppia
  • Infissi esterni in doppio vetro / metallo
  • Impianto tv centralizzato
Dettaglio superficie

Abitazione

Piano
4
Superficie
60,0 m²
Coefficiente
100%
Tipo superficie
Principale
Sup. commerciale
60,0 m²
Informazioni sul prezzo
Prezzo
€ 295.000
Prezzo al m²
4.917 €/m²
New
Dettaglio dei costi
Spese condominio
€ 40/mese
Spese riscaldamento
€ 1/anno
Efficienza energetica

Consumo di energia

10.28 kWh/m² annoG

Planimetria
planimetria1
planimetria2
Scopri ogni angolo dell'immobile
+29
Inserzionista
scheda agenzia
Mutuo
%
Durata del mutuo

Rata da € 876 al mese

€ 88.500 (30%)

€ 206.500 (70%)

Vuoi sapere che mutuo puoi richiedere?

Opzioni aggiuntive

Contatta l'inserzionista

Oppure