Locale commerciale in Vendita

€ 1.500.000
20.000 m²
T

Nota

Annuncio aggiornato il 07/07/2025
Descrizione

riferimento: CBI069-1944-132844

Ricettivo in vendita a Racale, Torre Suda

TORRE SUDA - SALENTO - PUGLIA
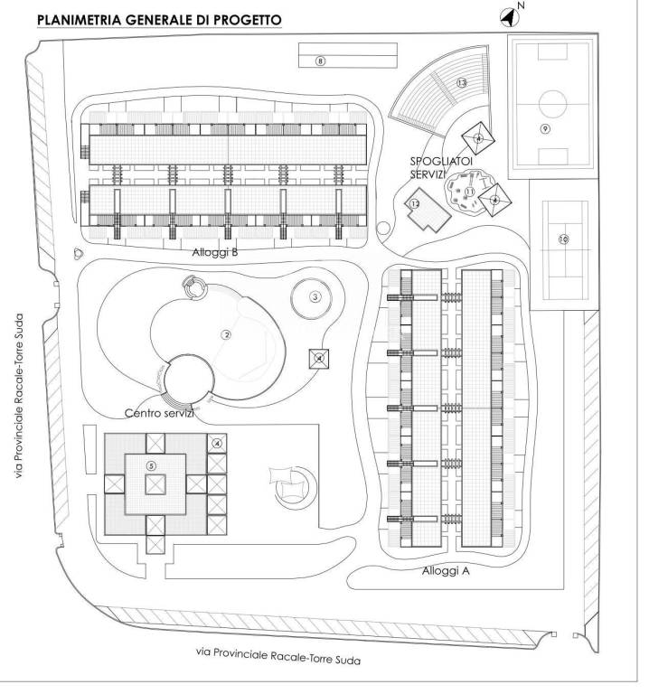
Immerso nella suggestiva cornice della Marina di Torre Suda, nel Comune di Racale, a soli 900 metri dal mare, proponiamo in vendita un complesso immobiliare allo stato rustico, con progetto approvato per la realizzazione di un resort di 132 camere, completo di tutti i servizi: ristorante, bar, reception, centro congressi, piscina per adulti e bambini, area wellness, campi sportivi e spazi dedicati all'intrattenimento. Il resort sorge su un terreno di circa 20.000 mq, in posizione pianeggiante e facilmente accessibile, a breve distanza dalle principali arterie stradali del Salento.
L'immobile è privo di precedenti gestioni, condizione che consente all'investitore di definire fin da subito l'identità del marchio, lo stile delle finiture e il posizionamento commerciale. Un progetto personalizzabile, con spazi già strutturati secondo criteri di efficienza energetica e rispetto delle normative edilizie vigenti.
Il Salento, e in particolare la provincia di Lecce, continua a registrare una crescita costante dei flussi turistici, sia italiani che internazionali, diventando una delle mete preferite per chi cerca autenticità, natura e qualità dell'ospitalità. In questo contesto, la proprietà può ambire a posizionarsi nella fascia medio-alta dell'offerta alberghiera regionale, con importanti margini di sviluppo e redditività.
Con una domanda turistica in crescita e un contesto naturale di rara bellezza, questa proprietà è l'ideale per chi vuole entrare o consolidarsi nel panorama dell'ospitalità pugliese.
La posizione è inoltre uno dei punti di forza di questo investimento, dista infatti 900 metri dal Mare, 8,5 km dalla SS274, arteria che collega Lecce a Santa Maria di Leuca, 90 km dall'aeroporto di Brindisi,15 km da Gallipoli e Baia Verde, famose per la vita notturna e le spiagge dorate e 20 km dalle Marine di Ugento, rinomate per i lunghi tratti sabbiosi e le acque turchesi.
Se vuoi saperne di più, puoi parlare con Loredana Latino.
Caratteristiche
Contratto
Vendita
Tipologia
Locale commerciale
Superficie
20.000 m²
Locali
Doppio ingresso
Piano
Piano terra
Piani edificio
2
Ultima attività svolta
Hotel
Disponibilità
Libero
Altre caratteristiche
  • Posizione ad angolo
Dettaglio superficie

Altro

Piano
Piano terra
Superficie
20.000,0 m²
Coefficiente
100%
Tipo superficie
Principale
Sup. commerciale
20.000,0 m²
Informazioni sul prezzo
Prezzo
€ 1.500.000
Prezzo al m²
75 €/m²
New
Dettaglio dei costi
Spese condominio
Nessuna spesa condominiale
Efficienza energetica
  • Stato

    Nuovo / In costruzione
  • Certificazione energetica

    Non classificabile
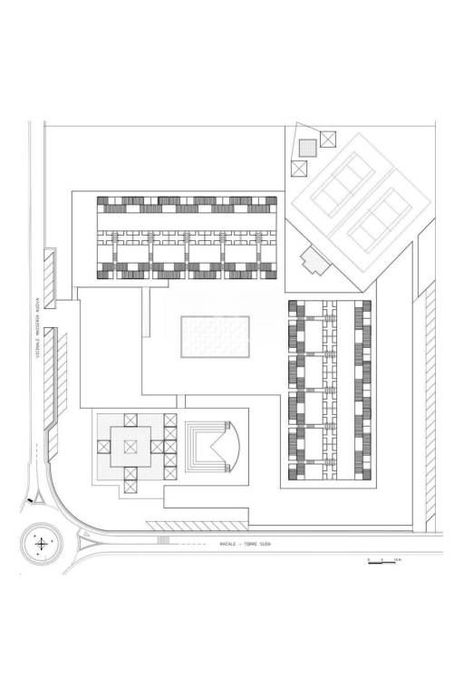
Planimetria
pianta stato di fatto
planimetria di progetto
Virtual tour
Scopri ogni angolo dell'immobile
+24
Opzioni aggiuntive

Contatta l'inserzionista

Oppure