Quadrilocale via del Porto, Aldeno

€ 482.000
4
145 m²
2
1
Balcone
Terrazzo

Nota

Annuncio aggiornato il 08/10/2025
Descrizione

riferimento: 1232NA-C.20

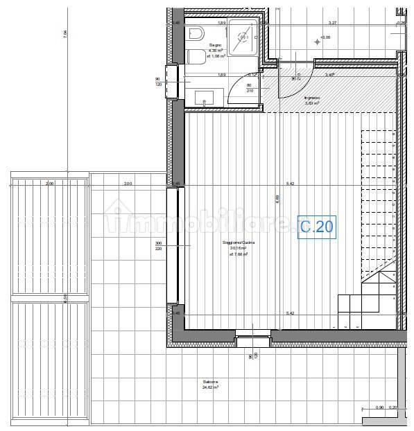
Quadrilocale in classe A+ con due terrazze e balcone

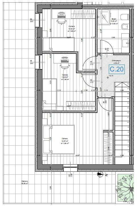
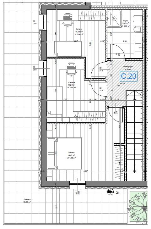
APPARTAMENTO DISPOSTO SU DUE LIVELLI, TRE STANZE, DUE BAGNI, DUE TERRAZZE E UN BALCONE. In zona soleggiata ad Aldeno vendiamo NUOVA REALIZZAZIONE IN CLASSE A+ improntata al massimo risparmio energetico e all'abbattimento dei costi di gestione. Disponiamo di villa bifamiliare con ampi giardini e appartamenti di varie metrature: due stanze, tre stanze, doppi servizi, giardini privati e terrazze. Tutti gli appartamenti sono dotati di ampia zona giorno con vetrate triplo vetro, tapparelle elettriche e frangisole. RISCALDAMENTO E RAFFRESCAMENTO A PAVIMENTO, POMPE DI CALORE, RICIRCOLO DELL'ARIA CON SISTEMA VMC, FOTOVOLTAICO, SOLARE, IMPIANTO DI ALLARME PERIMETRALE IN TUTTI GLI APPARTAMENTI. POSSIBILITA' SCELTA FINITURE. CAPITOLATO CON FINITURE DI PREGIO. Consegna prevista gennaio 2027. Maggiori informazioni in ufficio.
Se vuoi saperne di più, puoi parlare con Postal Antonella.
Caratteristiche
Tipologia
Appartamento | Intera proprietà | Classe immobile signorile
Contratto
Vendita - Scarica capitolato
Piano
1
Piani edificio
2
Ascensore
Superficie
145 m²
Locali
4
Camere da letto
3
Cucina
Cucina angolo cottura
Bagni
2
Arredato
No
Balcone
Terrazzo
Riscaldamento
Centralizzato, a pavimento, alimentato a pompa di calore
Climatizzazione
Centralizzato, freddo
Altre caratteristiche
  • Esposizione esterna
  • Fibra ottica
  • Infissi esterni in triplo vetro / legno
  • Porta blindata
  • Cancello elettrico
  • Impianto tv centralizzato
  • VideoCitofono
Dettaglio superficie

Abitazione

Piano
1
Superficie
145,0 m²
Coefficiente
100%
Tipo superficie
Principale
Sup. commerciale
145,0 m²
Informazioni sul prezzo
Prezzo
€ 482.000
Prezzo al m²
3.324 €/m²
New
Dettaglio dei costi
Spese condominio
€ 100/mese
Efficienza energetica

Consumo di energia

≥ 175 kWh/m² annoA+

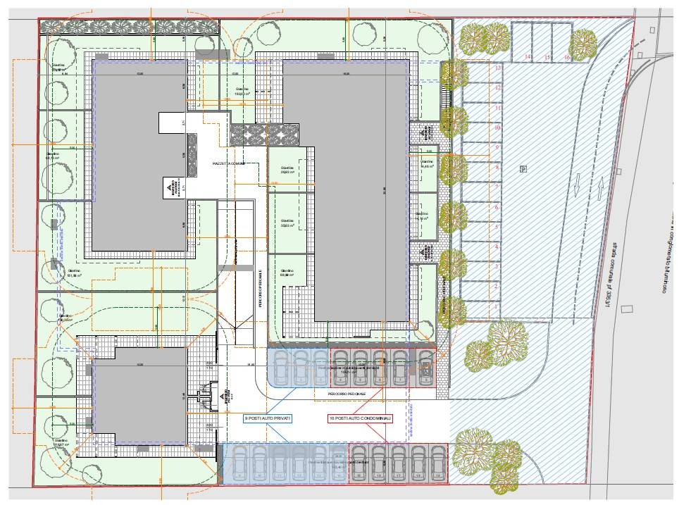
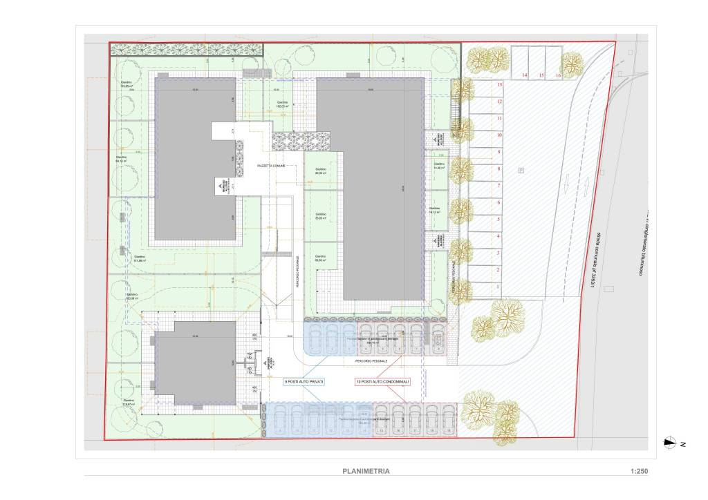
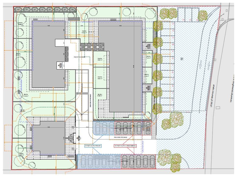
Planimetria
C.20 piano secondo
5 Planimetria 200 1
6 Interrato 200 1
18
13
14
Scopri ogni angolo dell'immobile
+58
Mutuo
%
Durata del mutuo

Rata da € 1.432 al mese

€ 144.600 (30%)

€ 337.400 (70%)

Vuoi sapere che mutuo puoi richiedere?

Opzioni aggiuntive

Contatta l'inserzionista

Oppure