map icon

Villa bifamiliare via Castelvecchio 34, Montalenghe

MontalengheVia Castelvecchio
€ 349.000
5+
620 m²
3+
No
Balcone
Terrazzo
Parzialmente Arredato
Cantina

Nota

Annuncio aggiornato il 08/11/2025
Descrizione

riferimento: EK-120347388

VILLA BIFAMILIARE INDIPENDENTE CON VISTA SUL PAESE

A Montalenghe, in zona tranquilla e con vista mozzafiato sul paesaggio, proponiamo in vendita una maestosa villa bifamiliare di ampi spazi.
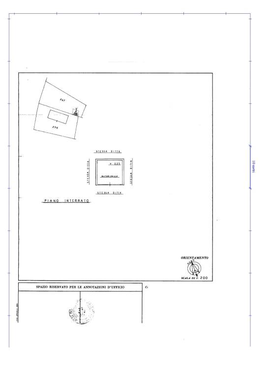
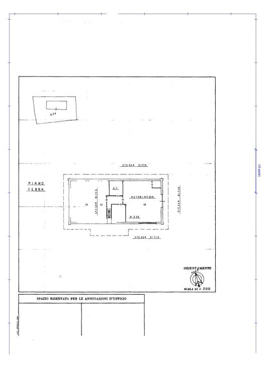
La proprietà, ristrutturata nel 1998, è sviluppata su tre piani oltre che essere dotata di un'autorimessa doppia, un giardino di 2.000 mq circa e una fantastica piscina interrata.
L'ingresso è su disimpegno il quale permette di accedere ai vari ambienti della soluzione.
La zona giorno è caratterizzata da un ampio soggiorno accessoriato da camino a legna e zona pranzo. Da quest'ultima si accede comodamente alla cucina completamente abitabile dotata di finestra.
Il piano, infine, è dotato di quattro camere da letto e due bagni accessoriati di sanitari, lavandini e box doccia.
Grazie alla presenza di numerose porte finestre poste nei vari ambienti si rende comodo e facile l'accesso al balcone esterno che circonda la soluzione e permette di giungere al giardino privato.
Tramite una scala interna posta nel disimpegno d'ingresso si può accedere al piano mansardato dove vi sono ulteriori tre camere da letto, due bagni, un ripostiglio e una zona dedicata ad un eventuale salotto.

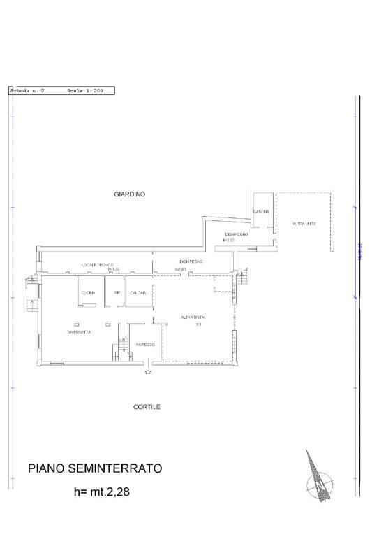
Completa la soluzione il piano terra caratterizzato da un'ampia tavernetta con camino a legna, cucina, vano dedicato alla cantina e un ultimo bagno.

La villa gode di ambienti molto ampi e spaziosi in tutti i vari piani e così disposta si presta ad ospitare due nuclei familiari: uno al piano primo ed uno al piano mansardato.

La villa, infine, al momento è locata con un contratto stipulato nel mese di Aprile 2025 con una durata di 4 anni + 4 anni.

La 8casa di Rivarolo offre valutazioni a titolo gratuito su tutto il territorio del Canavese ma anche nella Città di Torino e comuni limitrofi.

Per informazioni riguardante la soluzione, per fissare un appuntamento o per ricevere una valutazione chiamare i seguenti numeri:

Tel.: 0124.42.96.66
Cell.: 370.14.24.811
Se vuoi saperne di più, puoi parlare con Mattia Gallo.
Caratteristiche
Tipologia
Villa bifamiliare | Intera proprietà | Classe immobile media
Contratto
Vendita | Immobile a reddito
Piano
Piano terra, da 1 a 2
Piani edificio
2
Ascensore
No
Superficie
620 m² | commerciale 857 m²
Locali
5+
Camere da letto
7
Cucina
Cucina abitabile
Bagni
3+
Arredato
Parzialmente Arredato
Balcone
Terrazzo
Box, posti auto
2 in box privato/box in garage
Riscaldamento
Autonomo, a radiatori, alimentato a metano
Altre caratteristiche
  • Caminetto
  • Esposizione doppia
  • Infissi esterni in doppio vetro / legno
  • Mansarda
  • Taverna
  • Cancello elettrico
  • Impianto tv singolo
  • Piscina
Dettaglio superficie

Abitazione

Piano
1
Superficie
140,0 m²
Coefficiente
100%
Tipo superficie
Principale
Sup. commerciale
140,0 m²

Mansarda

Piano
2
Superficie
140,0 m²
Coefficiente
100%
Tipo superficie
Principale
Sup. commerciale
140,0 m²

Altro

Piano
Piano terra
Superficie
140,0 m²
Coefficiente
100%
Tipo superficie
Principale
Sup. commerciale
140,0 m²

Box o garage

Piano
Piano terra
Superficie
50,0 m²
Coefficiente
50%
Tipo superficie
Accessoria
Sup. commerciale
25,0 m²

Balcone

Piano
1
Superficie
40,0 m²
Coefficiente
30%
Tipo superficie
Accessoria
Sup. commerciale
12,0 m²

Giardino

Piano
Piano terra
Superficie
2.000,0 m²
Coefficiente
10%
Tipo superficie
Accessoria
Sup. commerciale
200,0 m²

Altro

Piano
Piano terra
Superficie
200,0 m²
Coefficiente
100%
Tipo superficie
Principale
Sup. commerciale
200,0 m²
Informazioni sul prezzo
Prezzo
€ 349.000
Prezzo al m²
407 €/m²
New
Dettaglio dei costi
Spese condominio
Nessuna spesa condominiale
Efficienza energetica

Consumo di energia

92.77 kWh/m² annoF

Planimetria
PLN_188026997_3
PLN_188026997_3
PLN_188026997_2
PLN_188026997_1
Scopri ogni angolo dell'immobile
+48
Mutuo
%
Durata del mutuo

Rata da € 1.037 al mese

€ 104.700 (30%)

€ 244.300 (70%)

Vuoi sapere che mutuo puoi richiedere?

Opzioni aggiuntive

Contatta l'inserzionista

Oppure